こんにちは、営業の河村 和範です。
本日ご紹介の物件は岐阜県大垣市にある「サンシャイン大垣駅南」です。
南北の2面接道で全室採光のとれる物件です。
北から見た外観
南から見た外観
道路を挟んだ反対側にはコンビニがあります。
外観がリノベーション済みで大変おしゃれです。
貸室・共用部も大規模リニューアル中となりますので、今後どんどん綺麗な物件となっていく予定です!!
2階が先行して工事が進んでいますので、まだ途中ですがご参照ください。
トイレ
手洗いの上に鏡が付く予定です。
201号室
壁と天井が出来上がっています。
床は好きな仕様がご相談いただけます。(このままでも味があっていいと思いますが。)
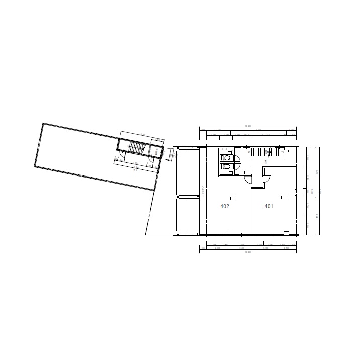
3階以上はまだスケルトンの状態ですのでご自身で内装を作りたい場合はこのままのお引渡しも可能です!
天井が高いので開放感のあるお部屋が作れそうです。
4階は一括でも分割でもご相談できます。
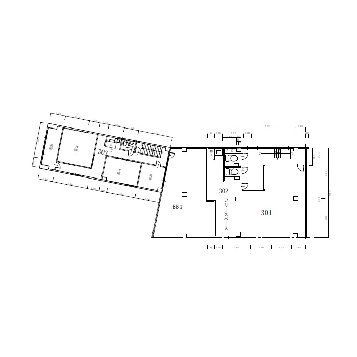
3階には広々としたテラスがあり、隣接したお部屋もフリースペースとしてご利用いただけます。
フリースペースにはキッチンを設置予定ですので、バーベキュー等もお楽しみいただけます。
喫煙も可能です。
隣地には駐車場もあります。
大変お値打ちな物件ですので是非お問い合わせください!!
物件名:サンシャイン大垣駅南 ← 物件詳細はこちらをクリック
所在地:岐阜県大垣市郭町東二丁目77番地
階 数:2階201号室
面 積:16.80坪(55.53㎡)
賃 料:77,000円(税込)
共益費:11,000円(税込)
保証金:2ヶ月
償 却:なし
備 考:保証会社加入要
詳細はお問い合わせください。


















