名古屋の貸事務所・オフィスをお探しなら「貸事務所.名古屋」へ。豊富な賃貸物件情報からご希望の物件が見つかります。経験豊富なスタッフが物件探しをサポートします。
サイトマップ
プライバシーポリシー
お気に入りの
登録は
0
件です
お気に入り
閲覧履歴
お問合せ
HOME
貸事務所.名古屋とは
物件検索
取引実績
ブログ
よくあるご質問
会社概要
ホーム
> ダイドー名駅南第2ビル
だいどーめいえきみなみだいにびる
ダイドー名駅南第2ビル
中村区名駅南4丁目、免震構造の美観オフィスビル
所在地
愛知県名古屋市中村区名駅南4丁目8番17号
地図
アクセス
名古屋市営東山線 名古屋駅 徒歩15分
JR中央本線 名古屋駅 徒歩15分
階数
地上 5階
築年月
2021年7月
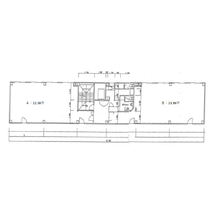
名駅南4 ダイドー名駅南第2ビル 平面図
名駅南4 ダイドー名駅南第2ビル 外観
名駅南4 ダイドー名駅南第2ビル エントランス
エントランスホール
貸室前
給湯室
洗面
トイレ
物件の空き待ち希望受付
現在の空室状況
階
専有面積
賃料
共益費
保証金
物件No.
3階
22.38坪
246,180円
-
8ヶ月
12225
お気に入りに追加
詳細を見る
ビルのおすすめポイント
ダイドー名駅南第2ビルは中村区名駅南4丁目にあるオフィスビルです。
大通に面しており、免震構造を採用しています。
設備
エレベーター
駐車場
建物概要
ビル名
ダイドー名駅南第2ビル
所在地
愛知県名古屋市中村区名駅南4丁目8番17号
築年月
2021年7月
築年月
鉄骨造
規模
地上 5階
最寄り駅
名古屋市営東山線 名古屋駅 徒歩15分
JR中央本線 名古屋駅 徒歩15分
希望の物件が掲載されていなくても
私たちがお探しいたします!
052-324-3334
電話する
営業時間 9:00~18:00 定休日:日・祝・年末年始・夏季
メールにてお問い合わせ
このエリアに近い物件
富士工名駅ビル
愛知県名古屋市西区牛島5番21号
階数 : 地上 7階
2021年2月
アクセス :
名古屋市営東山線 名古屋駅 徒歩7分
TOMITAビル
愛知県名古屋市西区牛島2番5号
階数 : 地上 12階
1992年12月
アクセス :
名古屋市営東山線 亀島駅 徒歩4分
名古屋市営東山線 名古屋駅 徒歩9分
伏見フロントビル
愛知県名古屋市中区錦1丁目
階数 : 地上 10階
2022年5月
アクセス :
名古屋市営東山線 伏見駅 徒歩2分
名古屋市営鶴舞線 伏見駅 徒歩2分
合人社名駅3ビル
愛知県名古屋市西区名駅3丁目9番37号
階数 : 地上 8階
2021年2月
アクセス :
名古屋市営桜通線 国際センター駅 徒歩6分
名古屋市営桜通線 名古屋駅 徒歩7分
名駅アネクス
愛知県名古屋市西区那古野2丁目12番12号
階数 : 地上 7階
2021年8月
アクセス :
名古屋市営東山線 名古屋駅 徒歩7分
名古屋市営桜通線 名古屋駅 徒歩7分
ダイアパレス伏見
愛知県名古屋市中区栄2丁目1番12号
階数 : 地上 13階
1983年2月
アクセス :
名古屋市営東山線 伏見駅 徒歩2分
名古屋市営鶴舞線 伏見駅 徒歩2分
伏見FGビルディング
愛知県名古屋市中区栄1丁目10番
階数 : 地上 9階
2021年12月
アクセス :
名古屋市営東山線 伏見駅 徒歩5分
名古屋市営鶴舞線 伏見駅 徒歩5分
STーBASE東名
愛知県名古屋市名東区 上社2丁目249番地
階数 : 地上 3階
2021年9月
アクセス :
名古屋市営東山線 上社駅 徒歩3分
Fudousan Plugin Ver.1.6.3