名古屋の貸事務所・オフィスをお探しなら「貸事務所.名古屋」へ。豊富な賃貸物件情報からご希望の物件が見つかります。経験豊富なスタッフが物件探しをサポートします。
サイトマップ
プライバシーポリシー
お気に入りの
登録は
1
件です
お気に入り
閲覧履歴
お問合せ
HOME
貸事務所.名古屋とは
物件検索
取引実績
ブログ
よくあるご質問
会社概要
ホーム
>
オフィスライブラリー
> さ行 : 白川本町ビル
しらかわほんまちびる
白川本町ビル
中区栄3丁目、南向き採光良好・美観ビル
所在地
愛知県名古屋市中区栄3丁目11番23号
地図
アクセス
名古屋市営東山線 栄駅 徒歩7分
名古屋市営東山線 伏見駅 徒歩8分
階数
地上 8階
築年月
2021年4月
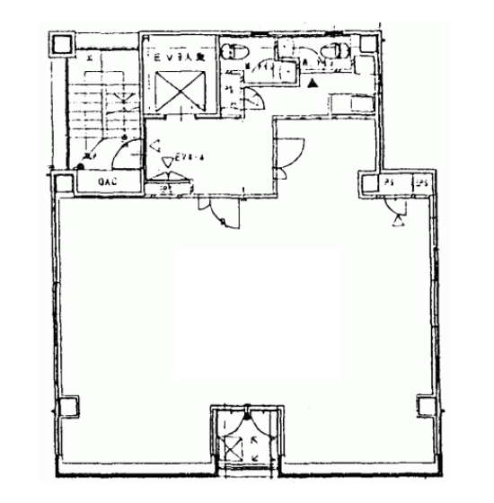
栄3 白川本町ビル 平面図
栄3 白川本町ビル 外観
栄3 白川本町ビル エントランス
エントランスホール
このビルに空きが出たらいち早くお知らせ!
物件の空き待ち希望受付
ビルのおすすめポイント
白川本町ビルは中区栄3丁目にあるオフィスビルです。
外観共用部ともに大変キレイな物件で、また、全室南向きで採光良好です。
事務所の他、店舗としてもご利用可能です。
設備
エレベーター
駐車場
建物概要
ビル名
白川本町ビル
所在地
愛知県名古屋市中区栄3丁目11番23号
築年月
2021年4月
築年月
鉄骨造
規模
地上 8階
最寄り駅
名古屋市営東山線 栄駅 徒歩7分
名古屋市営東山線 伏見駅 徒歩8分
希望の物件が掲載されていなくても
私たちがお探しいたします!
052-324-3334
電話する
営業時間 9:00~18:00 定休日:日・祝・年末年始・夏季
メールにてお問い合わせ
このエリアに近い物件
カゴメビル
愛知県名古屋市中区錦3丁目14番15号
階数 : 地上 11階
地下 1階
2021年5月
アクセス :
名古屋市営東山線 栄駅 徒歩1分
名古屋市営名城線 栄駅 徒歩1分
STーBASE東名
愛知県名古屋市名東区 上社2丁目249番地
階数 : 地上 3階
2021年9月
アクセス :
名古屋市営東山線 上社駅 徒歩3分
NHK名古屋放送センタービル
愛知県名古屋市東区東桜1丁目13番3号
階数 : 地上 21階
地下 4階
1991年6月
アクセス :
名古屋市営東山線 栄駅 徒歩2分
名古屋市営名城線 栄駅 徒歩2分
伏見フロントビル
愛知県名古屋市中区錦1丁目
階数 : 地上 10階
2022年5月
アクセス :
名古屋市営東山線 伏見駅 徒歩2分
名古屋市営鶴舞線 伏見駅 徒歩2分
ダイアパレス伏見
愛知県名古屋市中区栄2丁目1番12号
階数 : 地上 13階
1983年2月
アクセス :
名古屋市営東山線 伏見駅 徒歩2分
名古屋市営鶴舞線 伏見駅 徒歩2分
FUNFUN TOWER
愛知県名古屋市中区栄2丁目2番6号
階数 : 地上 6 階
1978年9月
アクセス :
名古屋市営東山線 伏見駅 徒歩3分
名古屋市営東山線 栄駅 徒歩9分
伏見FGビルディング
愛知県名古屋市中区栄1丁目10番
階数 : 地上 9階
2021年12月
アクセス :
名古屋市営東山線 伏見駅 徒歩5分
名古屋市営鶴舞線 伏見駅 徒歩5分
栄ハクレイビル
愛知県名古屋市中区栄5丁目21番33号
階数 : 地上 5階
2021年2月
アクセス :
名古屋市営名城線 矢場町駅 徒歩5分
Fudousan Plugin Ver.1.6.3