名古屋の貸事務所・オフィスをお探しなら「貸事務所.名古屋」へ。豊富な賃貸物件情報からご希望の物件が見つかります。経験豊富なスタッフが物件探しをサポートします。
サイトマップ
プライバシーポリシー
お気に入りの
登録は
2
件です
お気に入り
閲覧履歴
お問合せ
HOME
貸事務所.名古屋とは
物件検索
取引実績
ブログ
よくあるご質問
会社概要
ホーム
>
オフィスライブラリー
> さ行 : CTV錦ビル
しーてぃーぶいにしきびる
CTV錦ビル
中区錦3丁目、久屋大通沿い角地・地下街出口すぐのハイグレードビル
所在地
愛知県名古屋市中区錦3丁目15番15号
地図
アクセス
名古屋市営東山線 栄駅 徒歩2分
名古屋市営桜通線 久屋大通駅 徒歩3分
階数
地上 9階
地下 1階
築年月
1983年1月
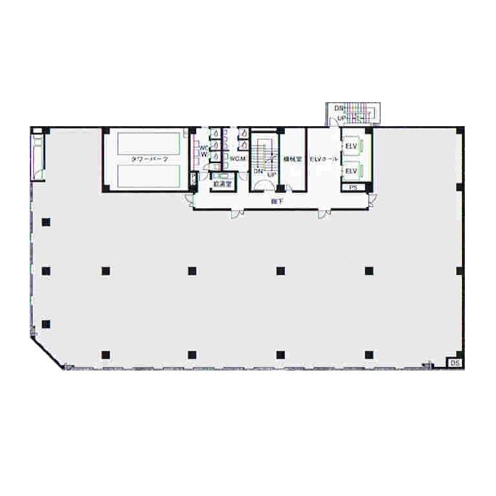
錦3 CTV錦ビル 平面図
錦3 CTV錦ビル 外観
錦3 CTV錦ビル エントランス
エントランスホール
エレベーターホール
共用廊下
洗面
トイレ①
トイレ②
給湯室
このビルに空きが出たらいち早くお知らせ!
物件の空き待ち希望受付
ビルのおすすめポイント
CTV錦ビルは中区錦3丁目にあり、久屋大通に面する大型オフィスビルです。
地下鉄「栄」駅、「久屋大通」駅の2駅3路線が利用可能な好立地です。
地下街「セントラルパーク」の出口が目の前にあり、雨に濡れることなくアクセスできます。
エントランスは白を基調としており高級感のある造りになっています。
各階共用水回りもリニューアルされ大変綺麗です。
東南角地に位置し、全室採光良好です。
続きを見る
設備
エレベーター
駐車場
建物概要
ビル名
CTV錦ビル
所在地
愛知県名古屋市中区錦3丁目15番15号
築年月
1983年1月
築年月
SRC
規模
地上 9階
地下 1階
最寄り駅
名古屋市営東山線 栄駅 徒歩2分
名古屋市営桜通線 久屋大通駅 徒歩3分
希望の物件が掲載されていなくても
私たちがお探しいたします!
052-324-3334
電話する
営業時間 9:00~18:00 定休日:日・祝・年末年始・夏季
メールにてお問い合わせ
このエリアに近い物件
STーBASE東名
愛知県名古屋市名東区 上社2丁目249番地
階数 : 地上 3階
2021年9月
アクセス :
名古屋市営東山線 上社駅 徒歩3分
NHK名古屋放送センタービル
愛知県名古屋市東区東桜1丁目13番3号
階数 : 地上 21階
地下 4階
1991年6月
アクセス :
名古屋市営東山線 栄駅 徒歩2分
名古屋市営名城線 栄駅 徒歩2分
伏見FGビルディング
愛知県名古屋市中区栄1丁目10番
階数 : 地上 9階
2021年12月
アクセス :
名古屋市営東山線 伏見駅 徒歩5分
名古屋市営鶴舞線 伏見駅 徒歩5分
カゴメビル
愛知県名古屋市中区錦3丁目14番15号
階数 : 地上 11階
地下 1階
2021年5月
アクセス :
名古屋市営東山線 栄駅 徒歩1分
名古屋市営名城線 栄駅 徒歩1分
ダイアパレス伏見
愛知県名古屋市中区栄2丁目1番12号
階数 : 地上 13階
1983年2月
アクセス :
名古屋市営東山線 伏見駅 徒歩2分
名古屋市営鶴舞線 伏見駅 徒歩2分
FUNFUN TOWER
愛知県名古屋市中区栄2丁目2番6号
階数 : 地上 6 階
1978年9月
アクセス :
名古屋市営東山線 伏見駅 徒歩3分
名古屋市営東山線 栄駅 徒歩9分
栄ハクレイビル
愛知県名古屋市中区栄5丁目21番33号
階数 : 地上 5階
2021年2月
アクセス :
名古屋市営名城線 矢場町駅 徒歩5分
伏見フロントビル
愛知県名古屋市中区錦1丁目
階数 : 地上 10階
2022年5月
アクセス :
名古屋市営東山線 伏見駅 徒歩2分
名古屋市営鶴舞線 伏見駅 徒歩2分
Fudousan Plugin Ver.1.6.3