名古屋の貸事務所・オフィスをお探しなら「貸事務所.名古屋」へ。豊富な賃貸物件情報からご希望の物件が見つかります。経験豊富なスタッフが物件探しをサポートします。

サイトマップ

プライバシーポリシー

  • お気に入りの
    登録は0件です

    お気に入り
  • 閲覧履歴

お問合せ

  • HOME
  • 貸事務所.名古屋とは
  • 物件検索
  • 取引実績
  • ブログ
  • よくあるご質問
  • 会社概要
【物件一覧】

75,625円
 41.32m²

【富士見町八木ビル】7階12.50坪 中区富士見町、賃料・保証金お値打ちビル

階数
7階/11階建 2号室
貸室面積
12.50坪
賃料
75,625円
所在地
愛知県名古屋市中区富士見町13番19号
交通
名古屋市営名城線東別院駅 徒歩2分
築年月
1972/1
おすすめポイント
富士見町八木ビルは中区富士見町にあり、前津通に面するビルです。 地下鉄名城線「東別院」駅徒歩2分の好立地です。 共用部をリニューアルしており、内装が綺麗な物…
更新日2025-08-29
物件の詳細を見る >
FavoriteLoadingお気に入りに保存する
相談
 241.61m²

名駅3 大名古屋ビルヂング 平面図

名駅3 大名古屋ビルヂング 外観

【大名古屋ビルヂング】19階73.09坪 中村区名駅3丁目、桜通沿い角地の名古屋駅前シンボルタワービル

階数
19階/34階建
貸室面積
73.09坪
賃料
相談
所在地
愛知県名古屋市中村区名駅3丁目28番12号
交通
名古屋市営東山線名古屋駅 徒歩1分
築年月
2015/10
おすすめポイント
大名古屋ビルヂングは中村区名駅3丁目にあり、桜通に面するハイグレードビルです。 名古屋を代表するまさにシンボルタワー的存在で知名度は抜群!! 名古屋駅とは地…
更新日2025-10-09
物件の詳細を見る >
FavoriteLoadingお気に入りに保存する
2,158,860円
 432.52m²

栄3 本町牧野ビル 平面図

栄3 本町牧野ビル 外観

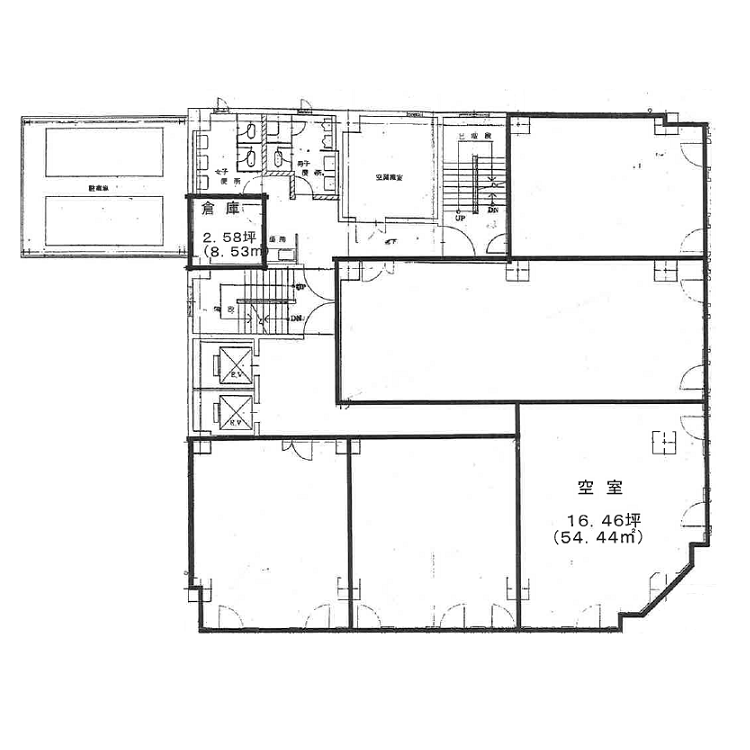
【本町牧野ビル】1・2階130.84坪 中区栄3丁目、本町通沿い美観採光良好ビル 

階数
1・2階/8階建
貸室面積
130.84坪
賃料
2,158,860円
所在地
愛知県名古屋市中区栄3丁目1番26号
交通
名古屋市営東山線栄駅 徒歩9分
築年月
1988/9
おすすめポイント
本町牧野ビルは中区栄2丁目にあり、本町通に面するオフィスビルです。 本町通は伏見駅と栄駅のちょうど中間にあるため2駅3路線利用可能です。 全室南向きのため採…
更新日2025-11-13
物件の詳細を見る >
FavoriteLoadingお気に入りに保存する
98,923円
 34.97m²

【藤田ビル】4階10.58坪 中区栄1丁目、広小路通と伏見通の交差点角の視認性の高いビル

階数
4階/6階建 406号室
貸室面積
10.58坪
賃料
98,923円
所在地
愛知県名古屋市中区栄1丁目5番8号
交通
名古屋市営東山線伏見駅 徒歩1分
築年月
1962
おすすめポイント
藤田ビルは中区栄1丁目にあり、広小路通と伏見通の交差点角地にある視認性抜群のオフィスビルです。 地下鉄東山線・鶴舞線「伏見駅」出口すぐのためアクセスも良好です…
更新日2025-10-06
物件の詳細を見る >
FavoriteLoadingお気に入りに保存する
363,000円
 99m²

一社3 オフィスクロンドビル 外観

【オフィスクロンドビル】1階30.00坪 名東区一社3丁目、高速インター近くの採光良好1フロア1テナントビル

階数
1階/8階建 1フロア号室
貸室面積
30.00坪
賃料
363,000円
所在地
愛知県名古屋市名東区一社3丁目108番地
交通
名古屋市営東山線上社駅 徒歩7分
築年月
1988/2
おすすめポイント
オフィスクロンドビルは名東区一社3丁目にあるオフィスビルです。 1フロア1テナント仕様ですので他テナントに気兼ねなくご利用いただけます。 南・東・北の3面採…
更新日2025-11-05
物件の詳細を見る >
FavoriteLoadingお気に入りに保存する
85,800円

丸の内3 弁護士ビル 平面図

丸の内3 弁護士ビル 外観

【弁護士ビル】4階12.06階 中区丸の内3丁目、大津通沿い士業にオススメのビル

階数
4階/11階建 403号室
貸室面積
12.06坪
賃料
85,800円
所在地
愛知県名古屋市中区丸の内3丁目5番35号
交通
名古屋市営名城線名古屋城駅 徒歩7分
築年月
1973/7
おすすめポイント
弁護士ビルは中区丸の内3丁目にあり、大津通に面するビルです。 名前の通り弁護士事務所様が多く入居されているビルです。
更新日2025-08-02
物件の詳細を見る >
FavoriteLoadingお気に入りに保存する
65,257円
 26.14m²

内山3 今池セントラルビル 平面図

内山3 今池セントラルビル 外観

【今池セントラルビル】5階7.91坪 千種区内山3丁目、錦通沿いのリニューアル済み駅近・大型ビル

階数
5階/9階建 A-1号室
貸室面積
7.91坪
賃料
65,257円
所在地
愛知県名古屋市千種区内山3丁目10番17号
交通
名古屋市営東山線今池駅 徒歩1分
築年月
1974/3
おすすめポイント
今池セントラルビルは千種区内山3丁目にあり、錦通に面する大型オフィスビルです。 地下鉄東山線・桜通線「今池」駅徒歩1分の好立地です。 館内はリニューアルされ…
更新日2025-11-11
物件の詳細を見る >
FavoriteLoadingお気に入りに保存する
356,730円
 71.47m²

錦3 錦マルエムビル 平面図

錦3 錦マルエムビル 外観

【錦マルエムビル】6階21.62坪 中区錦3丁目、本町通沿いの管理の行き届いた人気美観ビル

階数
6階/9階建 A号室
貸室面積
21.62坪
賃料
356,730円
所在地
愛知県名古屋市中区錦三丁目1番30号
交通
名古屋市営桜通線丸の内駅 徒歩3分
築年月
1997/9
おすすめポイント
錦マルエムビルは中区錦3丁目にあり、本町通に面するオフィスビルです。 地下鉄桜通線・鶴舞線「丸の内」駅徒歩3分の好立地です。 外観・共用部ともにきれいで管理…
更新日2025-10-15
物件の詳細を見る >
FavoriteLoadingお気に入りに保存する
40,700円
 29.25m²

今池2 八晃ビル 平面図

今池2 八晃ビル 外観

【八晃ビル】4階8.84坪 千種区今池2丁目、事務所可能マンション

階数
4階/7階建 408号室
貸室面積
8.84坪
賃料
40,700円
所在地
愛知県名古屋市千種区今池2丁目1番16号
交通
名古屋市営東山線千種駅 徒歩5分
築年月
1974/12
おすすめポイント
八晃ビルは千種区今池2丁目にあるマンションで事務所利用可能です。 エントランス周りがリニューアルされきれいです。
更新日2025-10-02
物件の詳細を見る >
FavoriteLoadingお気に入りに保存する
50,600円
 12.88m²

則武2 サン・オフィス名古屋 平面図

則武2 サン・オフィス名古屋 外観

【サン・オフィス名古屋】9階3.89坪 中村区則武2丁目、名駅徒歩4歩分の好立地スモールオフィスビル

階数
9階/10階建 953号室
貸室面積
3.89坪
賃料
50,600円
所在地
愛知県名古屋市中村区則武2丁目3番2号
交通
JR中央本線名古屋駅 徒歩4分
築年月
1992/9
おすすめポイント
サン・オフィス名古屋は中村区則武2丁目にあるビルです。 物件前にはコインパーキングがあり、来客用等に便利です。 3坪台から借りられるスモールオフィスビルで独…
更新日2025-10-09
物件の詳細を見る >
FavoriteLoadingお気に入りに保存する
  • 1
  • …
  • 71
  • 72
  • 73
  • 74
  • 75
  • …
  • 111

条件検索

条件検索

条件検索

※エリア選択をお選びいただきますと設備条件が表示されます。

路線・駅または県・市区を選んでいただき、ご希望の条件を選択して検索ボタンを押して下さい
路線・駅選択

県・市区選択

賃料
~
価格~
専有面積
~
駅徒歩
築年数

地図から物件を探す
中区の貸事務所物件特集
オーナー様へ
取引実績

路線マップ

物件キーワード

お値打ち カーテンウォール ガラス張り クリニック可 コンビニ リニューアル 三蔵通 中区 丸の内 久屋大通駅 伏見通 保証金お値打ち 喫煙所 大型 大津通 大通沿い 山王通 店舗可 採光良好 新栄 新築 昭和区 本町通 東区 栄 桜通 築浅 美観 耐震補強 角ビル 角地 貸会議室 郵便局 重厚感 錦 錦通 閑静 駅近 駐車場 駐輪場 駐輪所 1フロア1テナント 1階 EV2基 LED

物件掲載件数 1105 件

お気軽にお問い合わせください

営業時間:9:00~18:00 定休日:日・祝日

お問い合わせはこちら

おすすめ物件

  • 【CUBE一宮ビル】3階33....

    373,670円

    愛知県一宮市 本町4丁目6番5号

    JR東海道本線尾張一宮駅 徒歩8分

  • 【CUBE一宮ビル】2階13....

    159,357円

    愛知県一宮市 本町4丁目6番5号

    JR東海道本線尾張一宮駅 徒歩8分

  • 【スクエアオフィス名駅】2階9...

    133,276円

    愛知県名古屋市西区 那古野2丁目25番11号

    名古屋市営東山線名古屋駅 徒歩7分

  • 【木全ビル】2階26.55坪 ...

    121,000円

    愛知県名古屋市中川区 西日置1丁目1番3号

    名古屋市営鶴舞線大須観音駅 徒歩15分

更新情報をフォロー

  • 貸事務所.名古屋をフォロー
  • 貸事務所.名古屋をフォロー

Tweets by OfficeNagoya

  • 052-324-3334

    電話受付時間/9:00~18:00[日・祝は除く]
    物件のご相談はお気軽にお問い合わせください。

  • メールでのお問い合わせ

    貸事務所についてお気軽にご相談ください。
    1営業日以内に担当者よりご連絡いたします。

  • 052-324-3334

    電話受付時間/9:00~18:00[日・祝は除く]
    物件のご相談はお気軽にお問い合わせください。

  • メールでのお問い合わせ

    貸事務所についてお気軽にご相談ください。
    1営業日以内に担当者よりご連絡いたします。

  • お問い合わせはこちら
  • 条件検索はこちら
ページ上部へ戻る

エリア別検索

  • 名駅
  • 栄
  • 久屋大通
  • 丸の内
  • 伏見
  • 金山
  • 大須
  • その他

    地域カテゴリ

    • 一宮市
    • 半田市
    • 岐阜市
    • 名古屋市
      • 千種区
      • 東区
      • 北区
      • 西区
      • 中村区
      • 中区
      • 昭和区
      • 瑞穂区
      • 熱田区
      • 中川区
      • 港区
      • 南区
      • 守山区
      • 名東区
      • 天白区
    • 豊橋市
    • 岡崎市
    • 豊田市

    路線カテゴリ

    • 名鉄一宮駅
    • 尾張一宮駅
    • 山王駅
    • 小幡駅
    • 池内町東駅
    • JR東海道新幹線
      • 豊橋駅
    • 豊橋鉄道市内線
      • 新川駅
    • 愛知環状鉄道
      • 新豊田駅
    • 名鉄三河線
      • 豊田市駅
    • 東山線
      • 本陣駅
      • 中村日赤駅
      • 名古屋駅
      • 亀島駅
      • 栄駅
      • 伏見駅
      • 新栄駅
      • 千種駅
      • 今池駅
      • 池下駅
      • 一社駅
      • 上社駅
      • 本郷駅
      • 岩塚駅
      • 藤が丘駅
    • 桜通線
      • 中村区役所駅
      • 名古屋駅
      • 国際センター駅
      • 丸の内駅
      • 久屋大通駅
      • 高岳駅
      • 車道駅
      • 今池駅
      • 吹上駅
      • 御器所駅
      • 桜本町
      • 新瑞橋駅
    • 名城線
      • 総合リハビリセンター駅
      • ナゴヤドーム前矢田駅
      • 大曽根駅
      • 志賀本通駅
      • 黒川駅
      • 名城公園駅
      • 市役所駅
      • 久屋大通駅
      • 栄駅
      • 矢場町駅
      • 上前津駅
      • 東別院駅
      • 金山駅
      • 西高蔵駅
      • 熱田神宮伝馬町駅
      • 新瑞橋駅
    • 鶴舞線
      • 浄心駅
      • 浅間町駅
      • 丸の内駅
      • 伏見駅
      • 大須観音駅
      • 上前津駅
      • 鶴舞駅
      • 荒畑駅
      • 御器所駅
    • 名港線
      • 日比野駅
      • 名古屋港
    • JR中央本線
      • 大曽根駅
      • 千種駅
      • 鶴舞駅
      • 金山駅
      • 名古屋駅
    • JR東海道本線
      • 岐阜駅
      • 豊橋駅
      • 名古屋駅
    • 名鉄瀬戸線
      • 矢田駅
      • 東大手駅
      • 森下駅
      • 尼ケ坂駅
    • 名鉄名古屋本線
      • 神宮前駅
      • 東岡崎駅
      • 豊橋駅
      • 栄生駅
      • 桜駅
      • 山王駅
      • 東枇杷島駅
    • 名古屋臨海高速あおなみ線
      • ささしまライブ駅

    不動産関連サービス

    グループサービス

    • 不動産仲介はクルーズコーポレーション
    • テキサス不動産投資は
      クルーズハウジングコーポレーション
    • 不動産管理はクルーズ
    • 貸事務所.名古屋とは
    • 物件検索
    • 取引実績
    • ブログ
    • よくあるご質問
    • 不動産用語集
    • 貸事務所物件一覧
    • 会社概要
    • ビル情報
    • オフィスビルライブラリー
    • お問い合わせ
    • サイトマップ
    • プライバシーポリシー

    貸事務所.名古屋は名古屋市・栄の
    貸事務所探しのエキスパート集団です

    店舗名古屋

    貸事務所.名古屋では名古屋市の中区栄を中心とした貸事務所を紹介し、地元に根差した細やかなサービスでお客様のご要望にお応えいたします。

    名古屋栄地区の貸事務所賃貸のエキスパートとして、三越、松坂屋、ラシック、パルコ、ブランドショップが軒を連ねる南大津通を中心に、緑豊かな景色の久屋大通、ナディアパークやソニーストアのある伊勢町通り、人気のショップや飲食店が多い呉服町通り等、それぞれの特長ある栄の魅力をつくるためのテナントリーシングに注力しています。

    また貸事務所.名古屋のメンバーは自らの足で名古屋の街を歩き、そこで得られた旬の情報をブログや新着物件情報に日々更新を行っております。ぜひ貸事務所.名古屋メンバーの真心のこもった更新情報をご覧になっていただき、名古屋の街をより好きになってもらえるようになれば幸いでございます。

    不動産関連サービス

    グループサービス

    • 不動産仲介はクルーズコーポレーション
    • テキサス不動産投資はクルーズハウジングコーポレーション
    • 不動産管理はクルーズ

    • facebook
    • twitter
    • YouTube

    Copyright © kashijimusho.nagoya All Rights Reserved.

    Fudousan Plugin Ver.1.6.3