名古屋の貸事務所・オフィスをお探しなら「貸事務所.名古屋」へ。豊富な賃貸物件情報からご希望の物件が見つかります。経験豊富なスタッフが物件探しをサポートします。

サイトマップ

プライバシーポリシー

  • お気に入りの
    登録は19件です

    お気に入り
  • 閲覧履歴

お問合せ

  • HOME
  • 貸事務所.名古屋とは
  • 物件検索
  • 取引実績
  • ブログ
  • よくあるご質問
  • 会社概要
【物件一覧】

相談
 105.45m²

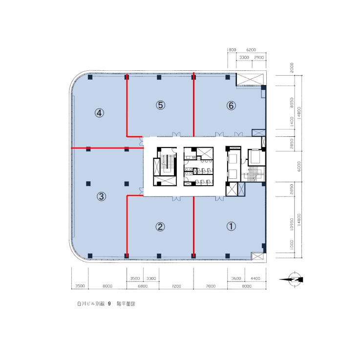
錦1 名古屋伏見スクエア 平面図

錦1 名古屋伏見スクエア 外観

【名古屋伏見スクエアビル】5階31.90坪 中区錦1丁目、錦通沿い無料会議室完備の大型ビル

階数
5階/12階建
貸室面積
31.90坪
賃料
相談
所在地
愛知県名古屋市中区錦1丁目13番26号
交通
名古屋市営東山線伏見駅 徒歩5分
築年月
1987/12
おすすめポイント
名古屋伏見スクエアビルは中区錦1丁目にあり、錦通に面した大型のオフィスビルです。 もともとは生命保険会社が所有していたビルですので、重厚感があります。 共用…
更新日2026-02-09
物件の詳細を見る >
FavoriteLoadingお気に入りに保存する
相談
 159.47m²

名駅3 合人社名駅3ビル 平面図

名駅3 合人社名駅3ビル 外観

【合人社名駅3ビル】7階48.24坪 西区名駅3丁目、閑静な立地のガラス張りハイグレードビル

階数
7階/8階建
貸室面積
48.24坪
賃料
相談
所在地
愛知県名古屋市西区名駅3丁目9番37号
交通
名古屋市営桜通線国際センター駅 徒歩6分
築年月
2009/2
おすすめポイント
合人社名駅3丁目ビルは西区名駅3丁目にあるオフィスビルです。 全面ガラス張りできれいな外観で、内装・設備等が上質で洗練されたハイグレードビルです。 閑静な立…
更新日2026-02-09
物件の詳細を見る >
FavoriteLoadingお気に入りに保存する
相談
 84.06m²

名駅3 合人社名駅3ビル 平面図

名駅3 合人社名駅3ビル 外観

【合人社名駅3ビル】7階25.43坪 西区名駅3丁目、閑静な立地のガラス張りハイグレードビル

階数
7階/8階建
貸室面積
25.43坪
賃料
相談
所在地
愛知県名古屋市西区名駅3丁目9番37号
交通
名古屋市営桜通線国際センター駅 徒歩6分
築年月
2009/2
おすすめポイント
合人社名駅3丁目ビルは西区名駅3丁目にあるオフィスビルです。 全面ガラス張りできれいな外観で、内装・設備等が上質で洗練されたハイグレードビルです。 閑静な立…
更新日2026-02-09
物件の詳細を見る >
FavoriteLoadingお気に入りに保存する
相談
 243.86m²

名駅3 合人社名駅3ビル 平面図

名駅3 合人社名駅3ビル 外観

【合人社名駅3ビル】2階73.77坪 西区名駅3丁目、閑静な立地のガラス張りハイグレード1フロア1テナントビル

階数
2階/8階建 1フロア号室
貸室面積
73.77坪
賃料
相談
所在地
愛知県名古屋市西区名駅3丁目9番37号
交通
名古屋市営桜通線国際センター駅 徒歩6分
築年月
2009/2
おすすめポイント
合人社名駅3丁目ビルは西区名駅3丁目にあるオフィスビルです。 全面ガラス張りできれいな外観で、内装・設備等が上質で洗練されたハイグレードビルです。 閑静な立…
更新日2026-02-09
物件の詳細を見る >
FavoriteLoadingお気に入りに保存する
500,214円
 115.63m²

名駅5 名駅イーストビル 平面図(間取)

名駅5 名駅イーストビル 外観

【名駅イーストビル】11階34.98坪 中村区名駅5丁目、錦通沿いガラスウォールの築浅ハイセンスビル

階数
11階/11階建 1104号室
貸室面積
34.98坪
賃料
500,214円
所在地
愛知県名古屋市中村区名駅5丁目28番1号
交通
名古屋市営桜通線国際センター駅 徒歩5分
築年月
2009/3
おすすめポイント
名駅イーストビルは中村区名駅5丁目にあり、錦通に面した、築浅のハイセンスビルです。 貸室はもちろんのこと、共用部(EV、トイレ、給湯室等)全てがきれいな物件で…
更新日2026-02-06
物件の詳細を見る >
FavoriteLoadingお気に入りに保存する
66,000円
 30.10m²

紅梅町3 ENSHOW QUATTRO 平面図

紅梅町3 ENSHOW QUATTRO 外観

【ENSHOW QUATTRO】5階9.10坪 昭和区紅梅町3丁目、御器所駅近デザイナーズマンション

階数
5階/7階建 5B号室
貸室面積
9.10坪
賃料
66,000円
所在地
愛知県名古屋市昭和区紅梅町3丁目4番地2
交通
名古屋市営桜通線御器所駅 徒歩2分
築年月
1999/8
おすすめポイント
ENSHOW QUATTROは昭和区紅梅町3丁目にあるマンションで事務所利用が可能な物件です。 地下鉄桜通線・鶴舞線「御器所」駅徒歩2分の好立地です。
更新日2026-02-06
物件の詳細を見る >
FavoriteLoadingお気に入りに保存する
67,815円
 27.17m²

【ミワ第一ビル】8階8.22坪 中区丸の内2丁目、駅近スモールオフィスビル

階数
8階/10階建 801号室
貸室面積
8.22坪
賃料
67,815円
所在地
愛知県名古屋市中区丸の内2丁目17番4号
交通
名古屋市営桜通線丸の内駅 徒歩2分
築年月
1987/10
おすすめポイント
ミワ第一ビルは中区丸の内2丁目にあるオフィスビルです。 貸室面積も10坪未満で独立開業等に適しています。 地下鉄桜通線・名城線「丸の内」駅から徒歩2分の好立…
更新日2026-02-05
物件の詳細を見る >
FavoriteLoadingお気に入りに保存する
相談
 165.35m²

【TS新端ビル】5階50.02坪 瑞穂区妙音通4丁目、新瑞橋駅近くの大通沿い1フロア1テナントビル

階数
5階/7階建 1フロア号室
貸室面積
50.02坪
賃料
相談
所在地
愛知県名古屋市瑞穂区妙音通4丁目40番地
交通
名古屋市営桜通線新瑞橋駅 徒歩2分
築年月
1998/3
おすすめポイント
TS新端ビルは瑞穂区妙音通4丁目にあり、大通りに面するオフィスビルです。 地下鉄桜通線・名城線「新瑞橋」駅徒歩2分の好立地です。 1フロア1テナント仕様です…
更新日2026-02-04
物件の詳細を見る >
FavoriteLoadingお気に入りに保存する
相談
 111.67m²

【日生村瀬ビル】3階33.78坪 中区錦3丁目、錦通と久屋大通の交差点、駅出口すぐの好立地ビル 

階数
3階/9階建
貸室面積
33.78坪
賃料
相談
所在地
愛知県名古屋市中区錦3丁目25番11号
交通
名古屋市営東山線栄駅 徒歩1分
築年月
1984/11
おすすめポイント
日生村瀬ビルは中区錦3丁目にあり、錦通と久屋大通の交差点に位置する大型オフィスビルです。 地下鉄東山線・名城線の出口がエントランスの目の前にあるというまさしく…
更新日2026-02-02
物件の詳細を見る >
FavoriteLoadingお気に入りに保存する
227,304円
 75.89m²

名駅4 西柳パークビル 平面図

名駅4 西柳パークビル 外観

【西柳パークビル】2階22.96坪 中村区名駅4丁目、錦通沿い全室採光良好ビル

階数
5階/7階建 西号室
貸室面積
22.96坪
賃料
227,304円
所在地
愛知県名古屋市中村区名駅4丁目13番7号
交通
名古屋市営東山線名古屋駅 徒歩5分
築年月
1983/5
おすすめポイント
西柳パークビルは中村区名駅4丁目にあり、錦通に面するオフィスビルです。 全室南向きで採光良好です。 名駅地下街出口徒歩1分のため、アクセスも良好です。
更新日2026-02-02
物件の詳細を見る >
FavoriteLoadingお気に入りに保存する
  • 1
  • 2
  • 3
  • 4
  • …
  • 111

条件検索

条件検索

条件検索

※エリア選択をお選びいただきますと設備条件が表示されます。

路線・駅または県・市区を選んでいただき、ご希望の条件を選択して検索ボタンを押して下さい
路線・駅選択

県・市区選択

賃料
~
価格~
専有面積
~
駅徒歩
築年数

地図から物件を探す
中区の貸事務所物件特集
オーナー様へ
取引実績

路線マップ

履歴クリア閲覧履歴

  • 【三甲名古屋錦ビル】6階91.51坪 中区錦1丁目、広小路通沿い角地のガラス張りハイグレードビル
    【三甲名古屋錦ビル】6階91.51坪 中区錦1丁目、広小路通沿い角地のガラス張りハイグレードビル
    相談 名古屋市中区錦1丁目16番25号名古屋市営東山線伏見駅

物件キーワード

お値打ち カーテンウォール ガラス張り クリニック可 コンビニ リニューアル 三蔵通 中区 丸の内 久屋大通駅 伏見通 保証金お値打ち 喫煙所 大型 大津通 大通沿い 山王通 店舗可 採光良好 新栄 新築 昭和区 本町通 東区 栄 桜通 築浅 美観 耐震補強 角ビル 角地 貸会議室 郵便局 重厚感 錦 錦通 閑静 駅近 駐車場 駐輪場 駐輪所 1フロア1テナント 1階 EV2基 LED

物件掲載件数 1101 件

お気軽にお問い合わせください

営業時間:9:00~18:00 定休日:日・祝日

お問い合わせはこちら

おすすめ物件

  • 【オイセタウンビル】2階32....

    286,000円

    愛知県名古屋市中村区 竹橋町5番10号

    名古屋市営桜通線太閤通駅 徒歩6分

  • 【中埜金山ビル】7階44.42...

    488,620円

    愛知県名古屋市中区 伊勢山2丁目5番10号

    名古屋市営名城線東別院駅 徒歩3分

  • 【津田ビル】2階40.82坪 ...

    相談

    愛知県名古屋市中区 丸の内2丁目13番12号

    名古屋市営桜通線丸の内駅 徒歩4分

  • 【太洋ビル】5階11.53坪 ...

    110,000円

    愛知県名古屋市東区 代官町39番22号

    名古屋市営桜通線高岳駅 徒歩7分

更新情報をフォロー

  • 貸事務所.名古屋をフォロー
  • 貸事務所.名古屋をフォロー

Tweets by OfficeNagoya

  • 052-324-3334

    電話受付時間/9:00~18:00[日・祝は除く]
    物件のご相談はお気軽にお問い合わせください。

  • メールでのお問い合わせ

    貸事務所についてお気軽にご相談ください。
    1営業日以内に担当者よりご連絡いたします。

  • 052-324-3334

    電話受付時間/9:00~18:00[日・祝は除く]
    物件のご相談はお気軽にお問い合わせください。

  • メールでのお問い合わせ

    貸事務所についてお気軽にご相談ください。
    1営業日以内に担当者よりご連絡いたします。

  • お問い合わせはこちら
  • 条件検索はこちら
ページ上部へ戻る

エリア別検索

  • 名駅
  • 栄
  • 久屋大通
  • 丸の内
  • 伏見
  • 金山
  • 大須
  • その他

    地域カテゴリ

    • 一宮市
    • 半田市
    • 岐阜市
    • 名古屋市
      • 千種区
      • 東区
      • 北区
      • 西区
      • 中村区
      • 中区
      • 昭和区
      • 瑞穂区
      • 熱田区
      • 港区
      • 南区
      • 守山区
      • 名東区
      • 天白区
    • 豊橋市
    • 岡崎市
    • 豊田市
    • 浜松市

    路線カテゴリ

    • 名鉄一宮駅
    • 尾張一宮駅
    • 山王駅
    • 小幡駅
    • 池内町東駅
    • JR東海道新幹線
      • 豊橋駅
    • 豊橋鉄道市内線
      • 新川駅
    • 愛知環状鉄道
      • 新豊田駅
    • 名鉄三河線
      • 豊田市駅
    • 東山線
      • 本陣駅
      • 中村公園駅
      • 中村日赤駅
      • 名古屋駅
      • 亀島駅
      • 栄駅
      • 伏見駅
      • 新栄駅
      • 千種駅
      • 今池駅
      • 池下駅
      • 一社駅
      • 上社駅
      • 本郷駅
      • 岩塚駅
    • 桜通線
      • 中村区役所駅
      • 名古屋駅
      • 国際センター駅
      • 丸の内駅
      • 久屋大通駅
      • 高岳駅
      • 車道駅
      • 今池駅
      • 吹上駅
      • 御器所駅
      • 桜本町
      • 新瑞橋駅
    • 名城線
      • ナゴヤドーム前矢田駅
      • 大曽根駅
      • 平安通駅
      • 志賀本通駅
      • 黒川駅
      • 名城公園駅
      • 市役所駅
      • 久屋大通駅
      • 栄駅
      • 矢場町駅
      • 上前津駅
      • 東別院駅
      • 金山駅
      • 西高蔵駅
      • 熱田神宮伝馬町駅
    • 鶴舞線
      • 浄心駅
      • 浅間町駅
      • 丸の内駅
      • 伏見駅
      • 大須観音駅
      • 上前津駅
      • 鶴舞駅
      • 荒畑駅
      • 御器所駅
    • 名港線
      • 名古屋港
    • JR中央本線
      • 大曽根駅
      • 千種駅
      • 鶴舞駅
      • 金山駅
      • 名古屋駅
    • JR東海道本線
      • 岐阜駅
      • 豊橋駅
      • 熱田駅
      • 名古屋駅
    • 名鉄瀬戸線
      • 矢田駅
      • 東大手駅
      • 森下駅
      • 尼ケ坂駅
    • 名鉄名古屋本線
      • 神宮前駅
      • 東岡崎駅
      • 豊橋駅
      • 栄生駅
      • 桜駅
      • 山王駅
    • 名古屋臨海高速あおなみ線
      • ささしまライブ駅

    不動産関連サービス

    グループサービス

    • 不動産仲介はクルーズコーポレーション
    • テキサス不動産投資は
      クルーズハウジングコーポレーション
    • 不動産管理はクルーズ
    • 貸事務所.名古屋とは
    • 物件検索
    • 取引実績
    • ブログ
    • よくあるご質問
    • 不動産用語集
    • 貸事務所物件一覧
    • 会社概要
    • ビル情報
    • オフィスビルライブラリー
    • お問い合わせ
    • サイトマップ
    • プライバシーポリシー

    貸事務所.名古屋は名古屋市・栄の
    貸事務所探しのエキスパート集団です

    店舗名古屋

    貸事務所.名古屋では名古屋市の中区栄を中心とした貸事務所を紹介し、地元に根差した細やかなサービスでお客様のご要望にお応えいたします。

    名古屋栄地区の貸事務所賃貸のエキスパートとして、三越、松坂屋、ラシック、パルコ、ブランドショップが軒を連ねる南大津通を中心に、緑豊かな景色の久屋大通、ナディアパークやソニーストアのある伊勢町通り、人気のショップや飲食店が多い呉服町通り等、それぞれの特長ある栄の魅力をつくるためのテナントリーシングに注力しています。

    また貸事務所.名古屋のメンバーは自らの足で名古屋の街を歩き、そこで得られた旬の情報をブログや新着物件情報に日々更新を行っております。ぜひ貸事務所.名古屋メンバーの真心のこもった更新情報をご覧になっていただき、名古屋の街をより好きになってもらえるようになれば幸いでございます。

    不動産関連サービス

    グループサービス

    • 不動産仲介はクルーズコーポレーション
    • テキサス不動産投資はクルーズハウジングコーポレーション
    • 不動産管理はクルーズ

    • facebook
    • twitter
    • YouTube

    Copyright © kashijimusho.nagoya All Rights Reserved.

    Fudousan Plugin Ver.1.6.3