名古屋の貸事務所・オフィスをお探しなら「貸事務所.名古屋」へ。豊富な賃貸物件情報からご希望の物件が見つかります。経験豊富なスタッフが物件探しをサポートします。

サイトマップ

プライバシーポリシー

  • お気に入りの
    登録は1件です

    お気に入り
  • 閲覧履歴

お問合せ

  • HOME
  • 貸事務所.名古屋とは
  • 物件検索
  • 取引実績
  • ブログ
  • よくあるご質問
  • 会社概要
【物件一覧】

215,017円
 58.77m²

栄5 GS栄ビル 平面図

栄5 GS栄ビル 外観

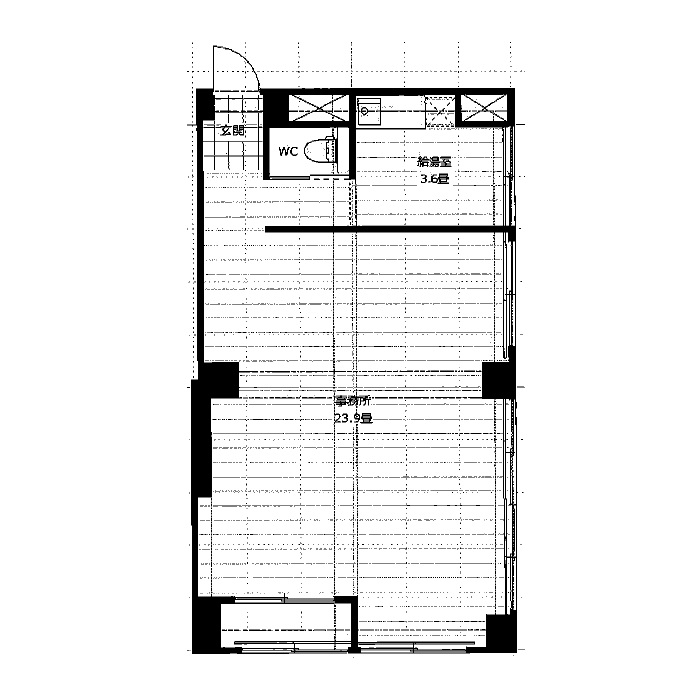
【GS栄ビル】4階17.77坪 中区栄5丁目、若宮大通沿い角地の採光良好・お値打ちビル

階数
4階/9階建 404号室
貸室面積
17.77坪
賃料
215,017円
所在地
愛知県名古屋市中区栄5丁目26番39号
交通
名古屋市営名城線矢場町駅 徒歩4分
築年月
1973/12
おすすめポイント
GS栄ビルは中区栄5丁目にあり、若宮大通に面するビルです。 南西角地にあり、全室採光良好です。 共用部リニューアル済みできれいな物件です。 1階にゴルフシ…
更新日2025-10-30
物件の詳細を見る >
FavoriteLoadingお気に入りに保存する
178,200円
 42.66m²

【ドルフィンコートIKESHITA】2階12.90坪  千種区春岡1丁目、デザイナーズマンションの2階事務所区画

階数
2階/5階建 202号室
貸室面積
12.90坪
賃料
178,200円
所在地
愛知県名古屋市千種区春岡1丁目6番18号
交通
名古屋市営東山線今池駅 徒歩3分
築年月
2023/2
おすすめポイント
ドルフィンコートIKESHITAは千種区春岡1丁目にあるマンションです。
更新日2025-10-27
物件の詳細を見る >
FavoriteLoadingお気に入りに保存する
相談
 44.62m²

錦2 オフィスオオモリ 平面図

錦2 オフィスオオモリ 外観

【オフィスオオモリ】6階13.50坪 中区錦2丁目、伏見通沿い駅近2駅利用可能ビル

階数
6階/10階建 602号室
貸室面積
13.50坪
賃料
相談
所在地
愛知県名古屋市中区錦2丁目8番24号
交通
名古屋市営東山線伏見駅 徒歩3分
築年月
おすすめポイント
オフィスオオモリは中区錦2丁目にあり、伏見通に面するオフィスビルです。 地下鉄東山線・鶴舞線「伏見」駅徒歩3分の好立地です。 13.50坪~46.60坪まで…
更新日2025-11-05
物件の詳細を見る >
FavoriteLoadingお気に入りに保存する
253,000円
 109.08m²

【Liente(2LDK+S+ガレージ)】1~3階32.99坪 中川区八田町、ガレージ付きデザイナーズ物件

階数
1~3階/3階建 B号室
貸室面積
32.99坪
賃料
253,000円
所在地
愛知県名古屋市中川区八田町1002番地
交通
名古屋市営東山線八田駅 徒歩3分
築年月
2022/10
おすすめポイント
Lienteは中川区八田町にあるデザイナーズアパートです。 事務所、店舗としてもご利用可能です。 1階はガレージです。
更新日2025-11-05
物件の詳細を見る >
FavoriteLoadingお気に入りに保存する
相談
 60.69m²

牛島町 TOMITAビル 平面図

牛島町 TOMITAビル 外観

【TOMITAビル】3階18.36坪 西区牛島町、名駅通沿いの大型ビル

階数
3階/12階建
貸室面積
18.36坪
賃料
相談
所在地
愛知県名古屋市西区牛島2番5号
交通
名古屋市営東山線亀島駅 徒歩4分
築年月
1992/12
おすすめポイント
TOMITAビルは西区牛島町にあり、名駅通に面する大型オフィスビルです。 開放的なエントランスが特徴的です。
更新日2025-11-05
物件の詳細を見る >
FavoriteLoadingお気に入りに保存する
相談
 384.99m²

【JMFビル名古屋錦01】6階116.46坪 中区錦3丁目、閑静な立地の採光良好1フロア1テナントリニューアルビル

階数
6階/9階建 1フロア号室
貸室面積
116.46坪
賃料
相談
所在地
愛知県名古屋市中区錦1丁目6番26号
交通
名古屋市営東山線伏見駅 徒歩4分
築年月
1993/9
おすすめポイント
JMFビル名古屋錦01は中区錦1丁目にあるオフィスビルです。 1フロア1テナント仕様ですので他テナントに気兼ねなくご利用いただけます。 南向きで明るい貸室で…
更新日2025-10-20
物件の詳細を見る >
FavoriteLoadingお気に入りに保存する
相談
 384.99m²

【JMFビル名古屋錦01】5階116.46坪 中区錦3丁目、閑静な立地の採光良好1フロア1テナントリニューアルビル

階数
5階/9階建 1フロア号室
貸室面積
116.46坪
賃料
相談
所在地
愛知県名古屋市中区錦1丁目6番26号
交通
名古屋市営東山線伏見駅 徒歩4分
築年月
1993/9
おすすめポイント
JMFビル名古屋錦01は中区錦1丁目にあるオフィスビルです。 1フロア1テナント仕様ですので他テナントに気兼ねなくご利用いただけます。 南向きで明るい貸室で…
更新日2025-10-20
物件の詳細を見る >
FavoriteLoadingお気に入りに保存する
相談
 384.99m²

【JMFビル名古屋錦01】4階116.46坪 中区錦3丁目、閑静な立地の採光良好1フロア1テナントリニューアルビル

階数
4階/9階建 1フロア号室
貸室面積
116.46坪
賃料
相談
所在地
愛知県名古屋市中区錦1丁目6番26号
交通
名古屋市営東山線伏見駅 徒歩4分
築年月
1993/9
おすすめポイント
JMFビル名古屋錦01は中区錦1丁目にあるオフィスビルです。 1フロア1テナント仕様ですので他テナントに気兼ねなくご利用いただけます。 南向きで明るい貸室で…
更新日2025-10-20
物件の詳細を見る >
FavoriteLoadingお気に入りに保存する
相談
 384.99m²

【JMFビル名古屋錦01】3階116.46坪 中区錦3丁目、閑静な立地の採光良好1フロア1テナントリニューアルビル

階数
3階/9階建 1フロア号室
貸室面積
116.46坪
賃料
相談
所在地
愛知県名古屋市中区錦1丁目6番26号
交通
名古屋市営東山線伏見駅 徒歩4分
築年月
1993/9
おすすめポイント
JMFビル名古屋錦01は中区錦1丁目にあるオフィスビルです。 1フロア1テナント仕様ですので他テナントに気兼ねなくご利用いただけます。 南向きで明るい貸室で…
更新日2025-10-20
物件の詳細を見る >
FavoriteLoadingお気に入りに保存する
45,100円
 21.76m²

則武新町4 スプリングヒル則武 平面図

則武新町4 スプリングヒル則武 外観

【スプリングヒル則武】4階6.58坪 西区則武新町4丁目、オートロック付マンションタイプオフィス

階数
5階/5階建 405号室
貸室面積
6.58坪
賃料
45,100円
所在地
愛知県名古屋市西区則武新町4丁目4番19号
交通
名鉄名古屋本線栄生駅 徒歩3分
築年月
1990/7
おすすめポイント
スプリングヒル則武は西区則武新町4丁目にあるビルです。 名鉄名古屋本線「栄生」駅徒歩3分の好立地です。 エントランスがオートロックになっており、セキュリティ…
更新日2025-11-05
物件の詳細を見る >
FavoriteLoadingお気に入りに保存する
  • 1
  • 2
  • 3
  • 4
  • …
  • 110

条件検索

条件検索

条件検索

※エリア選択をお選びいただきますと設備条件が表示されます。

路線・駅または県・市区を選んでいただき、ご希望の条件を選択して検索ボタンを押して下さい
路線・駅選択

県・市区選択

賃料
~
価格~
専有面積
~
駅徒歩
築年数

地図から物件を探す
中区の貸事務所物件特集
オーナー様へ
取引実績

路線マップ

履歴クリア閲覧履歴

  • 【ステーションビル】3階24.39坪 名東区上社2丁目、角地採光良好なレトロ感あふれるビル
    【ステーションビル】3階24.39坪 名東区上社2丁目、角地採光良好なレトロ感あふれるビル
    176,000円 名古屋市名東区上社2丁目168番地名古屋市営東山線上社駅

物件キーワード

お値打ち カーテンウォール ガラス張り クリニック可 コンビニ リニューアル 三蔵通 中区 丸の内 久屋大通駅 伏見通 保証金お値打ち 喫煙所 大型 大津通 大通沿い 山王通 店舗可 採光良好 新栄 新築 昭和区 本町通 東区 栄 桜通 築浅 美観 耐震補強 角ビル 角地 貸会議室 郵便局 重厚感 錦 錦通 閑静 駅近 駐車場 駐輪場 駐輪所 1フロア1テナント 1階 EV2基 LED

物件掲載件数 1097 件

お気軽にお問い合わせください

営業時間:9:00~18:00 定休日:日・祝日

お問い合わせはこちら

おすすめ物件

  • 【ENSHOW3】4階30.0...

    187,000円

    愛知県名古屋市昭和区 紅梅町3丁目2番地1

    名古屋市営桜通線御器所駅 徒歩1分

  • 【池下タワーズ】5階19.21...

    192,500円

    愛知県名古屋市千種区 仲田2丁目17番7号

    名古屋市営東山線池下駅 徒歩3分

  • 【今池エフワンビル】3階22....

    266,200円

    愛知県名古屋市千種区 今池4丁目8番1号

    名古屋市営東山線今池駅 徒歩1分

  • 【今池エフワンビル】1階20....

    292,864円

    愛知県名古屋市千種区 今池4丁目8番1号

    名古屋市営東山線今池駅 徒歩1分

更新情報をフォロー

  • 貸事務所.名古屋をフォロー
  • 貸事務所.名古屋をフォロー

Tweets by OfficeNagoya

  • 052-324-3334

    電話受付時間/9:00~18:00[日・祝は除く]
    物件のご相談はお気軽にお問い合わせください。

  • メールでのお問い合わせ

    貸事務所についてお気軽にご相談ください。
    1営業日以内に担当者よりご連絡いたします。

  • 052-324-3334

    電話受付時間/9:00~18:00[日・祝は除く]
    物件のご相談はお気軽にお問い合わせください。

  • メールでのお問い合わせ

    貸事務所についてお気軽にご相談ください。
    1営業日以内に担当者よりご連絡いたします。

  • お問い合わせはこちら
  • 条件検索はこちら
ページ上部へ戻る

エリア別検索

  • 名駅
  • 栄
  • 久屋大通
  • 丸の内
  • 伏見
  • 金山
  • 大須
  • その他

    地域カテゴリ

    • 半田市
    • 岐阜市
    • 名古屋市
      • 千種区
      • 東区
      • 北区
      • 西区
      • 中村区
      • 中区
      • 昭和区
      • 瑞穂区
      • 熱田区
      • 港区
      • 南区
      • 守山区
      • 名東区
      • 天白区
    • 豊橋市
    • 岡崎市
    • 豊田市
    • 浜松市

    路線カテゴリ

    • 山王駅
    • 小幡駅
    • 池内町東駅
    • JR東海道新幹線
      • 豊橋駅
    • 豊橋鉄道市内線
      • 新川駅
    • 愛知環状鉄道
      • 新豊田駅
    • 名鉄三河線
      • 豊田市駅
    • 東山線
      • 本陣駅
      • 中村公園駅
      • 中村日赤駅
      • 名古屋駅
      • 亀島駅
      • 栄駅
      • 伏見駅
      • 新栄駅
      • 千種駅
      • 今池駅
      • 池下駅
      • 一社駅
      • 上社駅
      • 本郷駅
      • 岩塚駅
      • 藤が丘駅
    • 桜通線
      • 中村区役所駅
      • 名古屋駅
      • 国際センター駅
      • 丸の内駅
      • 久屋大通駅
      • 高岳駅
      • 車道駅
      • 今池駅
      • 吹上駅
      • 御器所駅
      • 桜本町
      • 新瑞橋駅
    • 名城線
      • 総合リハビリセンター駅
      • ナゴヤドーム前矢田駅
      • 大曽根駅
      • 志賀本通駅
      • 黒川駅
      • 名城公園駅
      • 市役所駅
      • 久屋大通駅
      • 栄駅
      • 矢場町駅
      • 上前津駅
      • 東別院駅
      • 金山駅
      • 西高蔵駅
      • 熱田神宮伝馬町駅
      • 新瑞橋駅
    • 鶴舞線
      • 浄心駅
      • 浅間町駅
      • 丸の内駅
      • 伏見駅
      • 大須観音駅
      • 上前津駅
      • 鶴舞駅
      • 荒畑駅
      • 御器所駅
    • 名港線
      • 日比野駅
      • 名古屋港
    • JR中央本線
      • 大曽根駅
      • 千種駅
      • 鶴舞駅
      • 金山駅
      • 名古屋駅
    • JR東海道本線
      • 岐阜駅
      • 豊橋駅
      • 名古屋駅
    • 名鉄瀬戸線
      • 矢田駅
      • 東大手駅
      • 森下駅
      • 尼ケ坂駅
    • 名鉄名古屋本線
      • 神宮前駅
      • 東岡崎駅
      • 豊橋駅
      • 栄生駅
      • 桜駅
      • 山王駅
      • 東枇杷島駅
    • 名古屋臨海高速あおなみ線
      • ささしまライブ駅

    不動産関連サービス

    グループサービス

    • 不動産仲介はクルーズコーポレーション
    • テキサス不動産投資は
      クルーズハウジングコーポレーション
    • 不動産管理はクルーズ
    • 貸事務所.名古屋とは
    • 物件検索
    • 取引実績
    • ブログ
    • よくあるご質問
    • 不動産用語集
    • 貸事務所物件一覧
    • 会社概要
    • ビル情報
    • オフィスビルライブラリー
    • お問い合わせ
    • サイトマップ
    • プライバシーポリシー

    貸事務所.名古屋は名古屋市・栄の
    貸事務所探しのエキスパート集団です

    店舗名古屋

    貸事務所.名古屋では名古屋市の中区栄を中心とした貸事務所を紹介し、地元に根差した細やかなサービスでお客様のご要望にお応えいたします。

    名古屋栄地区の貸事務所賃貸のエキスパートとして、三越、松坂屋、ラシック、パルコ、ブランドショップが軒を連ねる南大津通を中心に、緑豊かな景色の久屋大通、ナディアパークやソニーストアのある伊勢町通り、人気のショップや飲食店が多い呉服町通り等、それぞれの特長ある栄の魅力をつくるためのテナントリーシングに注力しています。

    また貸事務所.名古屋のメンバーは自らの足で名古屋の街を歩き、そこで得られた旬の情報をブログや新着物件情報に日々更新を行っております。ぜひ貸事務所.名古屋メンバーの真心のこもった更新情報をご覧になっていただき、名古屋の街をより好きになってもらえるようになれば幸いでございます。

    不動産関連サービス

    グループサービス

    • 不動産仲介はクルーズコーポレーション
    • テキサス不動産投資はクルーズハウジングコーポレーション
    • 不動産管理はクルーズ

    • facebook
    • twitter
    • YouTube

    Copyright © kashijimusho.nagoya All Rights Reserved.

    Fudousan Plugin Ver.1.6.3