名古屋の貸事務所・オフィスをお探しなら「貸事務所.名古屋」へ。豊富な賃貸物件情報からご希望の物件が見つかります。経験豊富なスタッフが物件探しをサポートします。

サイトマップ

プライバシーポリシー

  • お気に入りの
    登録は4件です

    お気に入り
  • 閲覧履歴

お問合せ

  • HOME
  • 貸事務所.名古屋とは
  • 物件検索
  • 取引実績
  • ブログ
  • よくあるご質問
  • 会社概要
【物件一覧】

保証金お値打ち、大津通沿いビル!!
223,608円
 95.99m²

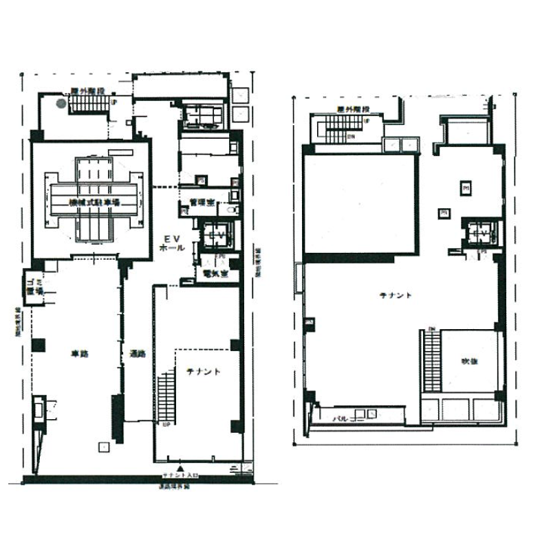
丸の内3 名古屋有楽ビル 平面図

丸の内3 名古屋有楽ビル 外観

【名古屋有楽ビル】9階29.04坪 中区丸の内3丁目、大津通沿いお値打ちビル

階数
9階/12階建 902号室
貸室面積
29.04坪
賃料
223,608円
所在地
愛知県名古屋市中区丸の内3丁目5番33号
交通
名古屋市営桜通線久屋大通駅 徒歩5分
築年月
1973/11
おすすめポイント
名古屋有楽ビルは中区丸の内3丁目にあり、大津通に面したオフィスビルです。 お近くには郵便局、中京銀行があります。
更新日2026-03-03
物件の詳細を見る >
FavoriteLoadingお気に入りに保存する
50,600円
 12.88m²

則武2 サン・オフィス名古屋 平面図

則武2 サン・オフィス名古屋 外観

【サン・オフィス名古屋】4階3.89坪 中村区則武2丁目、名駅徒歩4歩分の好立地スモールオフィスビル

階数
4階/10階建 457号室
貸室面積
3.89坪
賃料
50,600円
所在地
愛知県名古屋市中村区則武2丁目3番2号
交通
JR中央本線名古屋駅 徒歩4分
築年月
1992/9
おすすめポイント
サン・オフィス名古屋は中村区則武2丁目にあるビルです。 物件前にはコインパーキングがあり、来客用等に便利です。 3坪台から借りられるスモールオフィスビルで独…
更新日2026-02-03
物件の詳細を見る >
FavoriteLoadingお気に入りに保存する
506,088円
 168.99m²

錦3 ニューサカエビル 外観

【ニューサカエビル】8階51.12坪 中区錦3丁目、広小路通沿い令和12年10月末までの定借ビル

階数
8階/9階建
貸室面積
51.12坪
賃料
506,088円
所在地
愛知県名古屋市中区錦3丁目23番18号
交通
名古屋市営名城線栄駅 徒歩2分
築年月
1974/10
おすすめポイント
ニューサカエビルは中区錦3丁目にあり、広小路通に面する大型ビルです。 地下鉄東山線・名城線「栄」駅徒歩2分の好立地です。 定借の物件ですので賃料がお値打ちで…
更新日2026-03-02
物件の詳細を見る >
FavoriteLoadingお気に入りに保存する
1,199,990円
 228.38m²

丸の内1 Tower of strings 平面図

丸の内1 Tower of strings 外観

【Tower of strings】1・2階69.09坪 中区丸の内1丁目、前面ガラス張りの築浅デザイナーズビル

階数
1・2階/9階建
貸室面積
69.09坪
賃料
1,199,990円
所在地
愛知県名古屋市中区丸の内1丁目7番25号
交通
名古屋市営桜通線丸の内駅 徒歩4分
築年月
2009/5
おすすめポイント
Tower of stringsは中区丸の内1丁目にあるオフィスビルです。 地下鉄桜通線・鶴舞線「丸の内」駅徒歩3分の好立地です。 前面ガラス張りの外観とハ…
更新日2026-04-01
物件の詳細を見る >
FavoriteLoadingお気に入りに保存する
135,762円
 68.01m²

白壁1 白壁ビル 平面図

白壁1 白壁ビル 外観

【白壁ビル】6階20.57坪 東区白壁1丁目、空港線沿いの耐震補強工事実施済み大型ビル

階数
6階/12階建 601号室
貸室面積
20.57坪
賃料
135,762円
所在地
愛知県名古屋市東区白壁1丁目45番地
交通
名古屋市営名城線名古屋城駅 徒歩12分
築年月
1974/9
おすすめポイント
白壁ビルは東区白壁1丁目にあり、空港線に面するビルです。 耐震補強工事を実施しており、安心してご入居いただけます。 高速インターの出入り口も近くお車を使われ…
更新日2026-03-02
物件の詳細を見る >
FavoriteLoadingお気に入りに保存する
160,314円
 80.29m²

白壁1 白壁ビル 平面図

白壁1 白壁ビル 外観

【白壁ビル】4階24.29坪 東区白壁1丁目、空港線沿いの耐震補強工事実施済み大型ビル

階数
4階/12階建 410号室
貸室面積
24.29坪
賃料
160,314円
所在地
愛知県名古屋市東区白壁1丁目45番地
交通
名古屋市営名城線名古屋城駅 徒歩12分
築年月
1974/9
おすすめポイント
白壁ビルは東区白壁1丁目にあり、空港線に面するビルです。 耐震補強工事を実施しており、安心してご入居いただけます。 高速インターの出入り口も近くお車を使われ…
更新日2026-03-02
物件の詳細を見る >
FavoriteLoadingお気に入りに保存する
161,700円
 32.39m²

錦3 錦マルエムビル 平面図

錦3 錦マルエムビル 外観

【錦マルエムビル】4階9.80坪 中区錦3丁目、本町通沿いの管理の行き届いた人気美観ビル

階数
4階/9階建 B号室
貸室面積
9.80坪
賃料
161,700円
所在地
愛知県名古屋市中区錦三丁目1番30号
交通
名古屋市営桜通線丸の内駅 徒歩3分
築年月
1997/9
おすすめポイント
錦マルエムビルは中区錦3丁目にあり、本町通に面するオフィスビルです。 地下鉄桜通線・鶴舞線「丸の内」駅徒歩3分の好立地です。 外観・共用部ともにきれいで管理…
更新日2026-03-02
物件の詳細を見る >
FavoriteLoadingお気に入りに保存する
貸会議室・ラウンジスペース完備のリニューアルビル!!
1,545,324円
 356.04m²

名駅5 名駅D-1ビル 平面図

名駅5 名駅D-1ビル 外観

【名駅D-1ビル】2階117.07坪 広小路通沿いのフルリニューアルビル

階数
2階/8階建
貸室面積
117.07坪
賃料
1,545,324円
所在地
愛知県名古屋市中村区名駅5丁目38番5号
交通
名古屋市営東山線名古屋駅 徒歩12分
築年月
1992/2
おすすめポイント
名駅D-1ビルは中村区名駅5丁目にあり、広小路通に面するオフィスビルです。 外観・共用部等すべてリニューアルをしており、大変きれいな物件に生まれ変わりました。…
更新日2026-03-03
物件の詳細を見る >
FavoriteLoadingお気に入りに保存する
49,500円
 23.08m²

錦2 ケービービル 平面図

錦2 ケービービル 外観

【ケービービル】3階6.98坪 中区錦2丁目、接客室ありのスモールオフィスビル

階数
3階/7階建 302号室
貸室面積
6.98坪
賃料
49,500円
所在地
愛知県名古屋市中区錦2丁目11番25号
交通
名古屋市営東山線伏見駅 徒歩2分
築年月
1985/10
おすすめポイント
ケービービルは中区錦2丁目にあるオフィスビルです。 6~7坪のスモールオフィスです。 2階には無料でお使いいただける接客室があります。
更新日2026-02-12
物件の詳細を見る >
FavoriteLoadingお気に入りに保存する
455,697円
 152.10m²

千代田4 第五富士ビル 平面図

千代田4 第五富士ビル 外観

【第五富士ビル】4階46.03坪 中区千代田4丁目、山王通沿い角地の採光良好ビル

階数
4階/8階建 4A号室
貸室面積
46.03坪
賃料
455,697円
所在地
愛知県名古屋市中区千代田4丁目23番2号
交通
名古屋市営名城線東別院駅 徒歩6分
築年月
1979/10
おすすめポイント
第五富士ビルは中区千代田4丁目にあり、山王通に面するオフィスビルです。 物件の裏手すぐにコンビニがあり便利です。 間口が大きく、窓面が広くとれた明るい貸室で…
更新日2026-03-13
物件の詳細を見る >
FavoriteLoadingお気に入りに保存する
  • 1
  • …
  • 81
  • 82
  • 83
  • 84
  • 85
  • …
  • 110

条件検索

条件検索

条件検索

※エリア選択をお選びいただきますと設備条件が表示されます。

路線・駅または県・市区を選んでいただき、ご希望の条件を選択して検索ボタンを押して下さい
路線・駅選択

県・市区選択

賃料
~
価格~
専有面積
~
駅徒歩
築年数

地図から物件を探す
中区の貸事務所物件特集
オーナー様へ
取引実績

路線マップ

物件キーワード

お値打ち カーテンウォール ガラス張り クリニック可 コンビニ スモールオフィス リニューアル リフレッシュルーム 三蔵通 中区 丸の内 久屋大通駅 伏見通 保証金お値打ち 喫煙所 大型 大津通 大通沿い 山王通 店舗可 採光良好 新栄 新築 昭和区 本町通 東区 栄 桜通 築浅 美観 角ビル 角地 貸会議室 郵便局 重厚感 錦 錦通 閑静 駅近 駐車場 駐輪場 1 1フロア1テナント 1階 EV2基

物件掲載件数 1093 件

お気軽にお問い合わせください

営業時間:9:00~18:00 定休日:日・祝日

お問い合わせはこちら

おすすめ物件

  • 【長者町トランジットビル】3階...

    253,550円

    愛知県名古屋市中区 錦2丁目11番13号

    名古屋市営東山線伏見駅 徒歩6分

  • 【CREVISTA名駅南】1階...

    280,000円

    愛知県名古屋市中村区 名駅南2丁目11番35号

    名古屋市営東山線名古屋駅 徒歩10分

  • 【ダイアパレス伏見】6階11....

    99,000円

    愛知県名古屋市中区 栄2丁目1番12号

    名古屋市営東山線伏見駅 徒歩2分

  • 【プライム岐阜金町】3階23....

    155,628円

    岐阜県岐阜市金町1丁目4番地

更新情報をフォロー

  • 貸事務所.名古屋をフォロー
  • 貸事務所.名古屋をフォロー

Tweets by OfficeNagoya

  • 052-324-3334

    電話受付時間/9:00~18:00[日・祝は除く]
    物件のご相談はお気軽にお問い合わせください。

  • メールでのお問い合わせ

    貸事務所についてお気軽にご相談ください。
    1営業日以内に担当者よりご連絡いたします。

  • 052-324-3334

    電話受付時間/9:00~18:00[日・祝は除く]
    物件のご相談はお気軽にお問い合わせください。

  • メールでのお問い合わせ

    貸事務所についてお気軽にご相談ください。
    1営業日以内に担当者よりご連絡いたします。

  • お問い合わせはこちら
  • 条件検索はこちら
ページ上部へ戻る

エリア別検索

  • 名駅
  • 栄
  • 久屋大通
  • 丸の内
  • 伏見
  • 金山
  • 大須
  • その他

    地域カテゴリ

    • 一宮市
    • 半田市
    • 岐阜市
    • 名古屋市
      • 千種区
      • 東区
      • 北区
      • 西区
      • 中村区
      • 中区
      • 昭和区
      • 瑞穂区
      • 熱田区
      • 中川区
      • 港区
      • 南区
      • 守山区
      • 名東区
      • 天白区
    • 豊橋市
    • 岡崎市
    • 豊田市
    • 浜松市

    路線カテゴリ

    • 名鉄一宮駅
    • 尾張一宮駅
    • 山王駅
    • 小幡駅
    • 池内町東駅
    • JR東海道新幹線
      • 豊橋駅
    • 豊橋鉄道市内線
      • 新川駅
    • 愛知環状鉄道
      • 新豊田駅
    • 名鉄三河線
      • 豊田市駅
    • 東山線
      • 本陣駅
      • 中村公園駅
      • 中村日赤駅
      • 名古屋駅
      • 亀島駅
      • 栄駅
      • 伏見駅
      • 新栄駅
      • 千種駅
      • 今池駅
      • 池下駅
      • 一社駅
      • 上社駅
      • 本郷駅
      • 岩塚駅
    • 桜通線
      • 中村区役所駅
      • 名古屋駅
      • 国際センター駅
      • 丸の内駅
      • 久屋大通駅
      • 高岳駅
      • 車道駅
      • 今池駅
      • 吹上駅
      • 御器所駅
      • 桜本町
      • 新瑞橋駅
    • 名城線
      • ナゴヤドーム前矢田駅
      • 大曽根駅
      • 志賀本通駅
      • 黒川駅
      • 名城公園駅
      • 市役所駅
      • 久屋大通駅
      • 栄駅
      • 矢場町駅
      • 上前津駅
      • 東別院駅
      • 金山駅
      • 西高蔵駅
      • 熱田神宮伝馬町駅
    • 鶴舞線
      • 上小田井駅
      • 庄内通駅
      • 浄心駅
      • 浅間町駅
      • 丸の内駅
      • 伏見駅
      • 大須観音駅
      • 上前津駅
      • 鶴舞駅
      • 荒畑駅
      • 御器所駅
    • 名港線
      • 六番町駅
      • 名古屋港
    • JR中央本線
      • 大曽根駅
      • 千種駅
      • 鶴舞駅
      • 金山駅
      • 名古屋駅
    • JR東海道本線
      • 岐阜駅
      • 豊橋駅
      • 熱田駅
      • 名古屋駅
    • 名鉄瀬戸線
      • 矢田駅
      • 東大手駅
      • 森下駅
    • 名鉄名古屋本線
      • 神宮前駅
      • 東岡崎駅
      • 豊橋駅
      • 栄生駅
      • 桜駅
    • 名古屋臨海高速あおなみ線
      • ささしまライブ駅

    不動産関連サービス

    グループサービス

    • 不動産仲介はクルーズコーポレーション
    • テキサス不動産投資は
      クルーズハウジングコーポレーション
    • 不動産管理はクルーズ
    • 貸事務所.名古屋とは
    • 物件検索
    • 取引実績
    • ブログ
    • よくあるご質問
    • 不動産用語集
    • 貸事務所物件一覧
    • 会社概要
    • ビル情報
    • オフィスビルライブラリー
    • お問い合わせ
    • サイトマップ
    • プライバシーポリシー

    貸事務所.名古屋は名古屋市・栄の
    貸事務所探しのエキスパート集団です

    店舗名古屋

    貸事務所.名古屋では名古屋市の中区栄を中心とした貸事務所を紹介し、地元に根差した細やかなサービスでお客様のご要望にお応えいたします。

    名古屋栄地区の貸事務所賃貸のエキスパートとして、三越、松坂屋、ラシック、パルコ、ブランドショップが軒を連ねる南大津通を中心に、緑豊かな景色の久屋大通、ナディアパークやソニーストアのある伊勢町通り、人気のショップや飲食店が多い呉服町通り等、それぞれの特長ある栄の魅力をつくるためのテナントリーシングに注力しています。

    また貸事務所.名古屋のメンバーは自らの足で名古屋の街を歩き、そこで得られた旬の情報をブログや新着物件情報に日々更新を行っております。ぜひ貸事務所.名古屋メンバーの真心のこもった更新情報をご覧になっていただき、名古屋の街をより好きになってもらえるようになれば幸いでございます。

    不動産関連サービス

    グループサービス

    • 不動産仲介はクルーズコーポレーション
    • テキサス不動産投資はクルーズハウジングコーポレーション
    • 不動産管理はクルーズ

    • facebook
    • twitter
    • YouTube

    Copyright © kashijimusho.nagoya All Rights Reserved.

    Fudousan Plugin Ver.1.6.3