名古屋の貸事務所・オフィスをお探しなら「貸事務所.名古屋」へ。豊富な賃貸物件情報からご希望の物件が見つかります。経験豊富なスタッフが物件探しをサポートします。

サイトマップ

プライバシーポリシー

  • お気に入りの
    登録は0件です

    お気に入り
  • 閲覧履歴

お問合せ

  • HOME
  • 貸事務所.名古屋とは
  • 物件検索
  • 取引実績
  • ブログ
  • よくあるご質問
  • 会社概要
【物件一覧】

308,088円
 77.19m²

栄1 ハイツサンライズビル 平面図

栄1 ハイツサンライズビル 外観

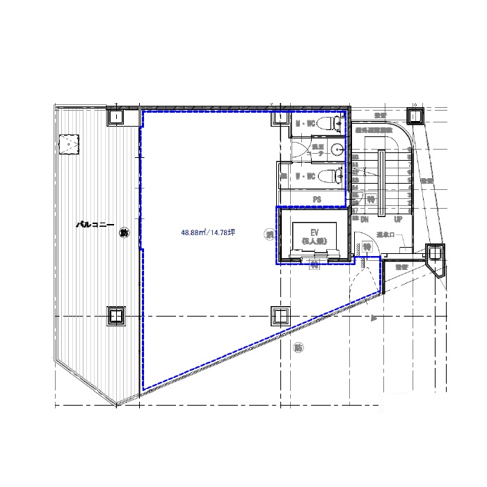
【ハイツサンライズビル】2階23.34坪 中区栄1丁目、賃料お値打ちマンションの2階オフィス区画

階数
2階/12階建 E号室
貸室面積
23.34坪
賃料
308,088円
所在地
愛知県名古屋市中区栄1丁目18番1号
交通
名古屋市営東山線伏見駅 徒歩10分
築年月
1974
おすすめポイント
ハイツサンライズビルは中区栄1丁目にあるマンションで1・2階がテナント区画の物件です。
更新日2025-09-12
物件の詳細を見る >
FavoriteLoadingお気に入りに保存する
相談
 68.03m²

伊勢山2 A.S金山ビル 平面図

伊勢山2 A.S金山ビル 外観

【A.Sビル金山】3階20.58坪 中区伊勢山2丁目、大津通沿いの採光良好美観ビル

階数
3階/7階建
貸室面積
20.58坪
賃料
相談
所在地
愛知県名古屋市中区伊勢町2丁目11番15号
交通
名古屋市営名城線金山駅 徒歩6分
築年月
2003/2
おすすめポイント
A.Sビル金山は中区伊勢山2丁目にあり、大津通に面するオフィスビルです。 地下鉄名城線「金山」駅徒歩6分の立地です。 南側がコインパーキングになっていますの…
更新日2025-11-04
物件の詳細を見る >
FavoriteLoadingお気に入りに保存する
332,640円
 92.56m²

丸の内1 キリックス丸の内ビル 平面図

丸の内1 キリックス丸の内ビル 外観

【キリックス丸の内ビル】9階28.00坪 中区丸の内1丁目、大型リフレッシュスペース・会議室完備の大型ビル

階数
9階/9階建 905号室
貸室面積
28.00坪
賃料
332,640円
所在地
愛知県名古屋市中区丸の内1丁目17番19号
交通
名古屋市営桜通線丸の内駅 徒歩2分
築年月
1966/3
おすすめポイント
キリックス丸の内ビルは中区丸の内1丁目にあり、桜通と伏見通の交差点角に位置する大型オフィスビルです。 地下鉄桜通線・鶴舞線「丸の内」駅徒歩2分の好立地です。 …
更新日2025-11-06
物件の詳細を見る >
FavoriteLoadingお気に入りに保存する
相談
 97.85m²

丸の内1 キリックス丸の内ビル 平面図

丸の内1 キリックス丸の内ビル 外観

【キリックス丸の内ビル】4階29.60坪 中区丸の内1丁目、大型リフレッシュスペース・会議室完備の大型ビル

階数
4階/9階建
貸室面積
29.60坪
賃料
相談
所在地
愛知県名古屋市中区丸の内1丁目17番19号
交通
名古屋市営桜通線丸の内駅 徒歩2分
築年月
1966/3
おすすめポイント
キリックス丸の内ビルは中区丸の内1丁目にあり、桜通と伏見通の交差点角に位置する大型オフィスビルです。 地下鉄桜通線・鶴舞線「丸の内」駅徒歩2分の好立地です。 …
更新日2025-11-06
物件の詳細を見る >
FavoriteLoadingお気に入りに保存する
116,902円
 54.04m²

栄5 新東陽ビル 平面図

栄5 新東陽ビル 外観

【新東陽ビル】9階16.35坪 中区栄5丁目、久屋大通沿い角地1階コンビニ入居ビル

階数
9階/9階建 901号室
貸室面積
16.35坪
賃料
116,902円
所在地
愛知県名古屋市中区栄5丁目16番14号
交通
名古屋市営名城線矢場町駅 徒歩1分
築年月
1988/3
おすすめポイント
新東陽ビルは中区栄5丁目にあり、久屋大通に面するオフィスビルです。 地下鉄名城線「矢場町」駅徒歩1分の好立地です。 1階にはコンビニが入居しており大変便利で…
更新日2025-10-15
物件の詳細を見る >
FavoriteLoadingお気に入りに保存する
462,000円
 68.22m²

栄3 伊勢町平和ビル 平面図

栄3 伊勢町平和ビル 外観

【伊勢町平和ビル】5階20.63坪 中区栄3丁目、共用部リニューアル済み設備充実セットアップオフィス

階数
5階/8階建 C号室
貸室面積
20.63坪
賃料
462,000円
所在地
愛知県名古屋市中区栄3丁目8番21号
交通
名古屋市営東山線栄駅 徒歩6分
築年月
1994/1
おすすめポイント
伊勢町平和ビルは中区栄3丁目にあるオフィスビルです。 共用部リニューアル済みで綺麗な物件です。 執務スペース、会議室等パーティション、什器備品がすべて揃った…
更新日2025-10-28
物件の詳細を見る >
FavoriteLoadingお気に入りに保存する
341,627円
 78.97m²

名駅4 MARUWA名駅ビル 平面図

名駅4 MARUWA名駅ビル 外観

【MARUWA名駅ビル】8階23.89坪 中村区名駅4丁目、広小路通沿い人気のインテリジェントビル

階数
8階/9階建 B号室
貸室面積
23.89坪
賃料
341,627円
所在地
愛知県名古屋市中村区名駅4丁目23番9号
交通
名古屋市営東山線名古屋駅 徒歩7分
築年月
1992/2
おすすめポイント
MARUWA名駅ビルは中村区名駅4丁目にあり、広小路通に面するオフィスビルです。 外観・共用部共に大変キレイで、小さい面積帯の貸室があることから人気のビルです…
更新日2025-11-04
物件の詳細を見る >
FavoriteLoadingお気に入りに保存する
110,000円
 42.06m²

則武1 チサンマンション名古屋第3 平面図

則武1 チサンマンション名古屋第3 外観

【チサンマンション第3名古屋】10階12.72坪 中村区則武1丁目、名古屋駅徒歩圏のリノベーション済み事務所利用可能マンション

階数
10階/11階建 1006号室
貸室面積
12.72坪
賃料
110,000円
所在地
愛知県名古屋市中村区則武1丁目13番9号
交通
名古屋市営東山線名古屋駅 徒歩6分
築年月
1973/4
おすすめポイント
チサンマンション第3名古屋は中村区則武1丁目にあるマンションで事務所利用可能な物件です。 ユニットバスを撤去し事務所内装にリノベーションされています。
更新日2025-10-09
物件の詳細を見る >
FavoriteLoadingお気に入りに保存する
久屋大通駅出口目の前の好立地ハイグレードビル!!
相談
 92.16m²

錦3 オーキッドプレイス名古屋錦 平面図

錦3 オーキッドプレイス名古屋錦 外観

【オーキッドプレイス名古屋錦】10階27.88坪 中区錦3丁目、大通交差点、駅出口すぐの好立地ビル

階数
10階/11階建 1001号室
貸室面積
27.88坪
賃料
相談
所在地
愛知県名古屋市中区錦3丁目5番31号
交通
名古屋市営桜通線久屋大通駅 徒歩1分
築年月
1994/4
おすすめポイント
オーキッドプレイス名古屋錦は中区錦3丁目にあり、大津通と桜通の交差点角地に位置するオフィスビルです。 地下鉄桜通線・名城線「久屋大通」駅出口目の前の好立地でア…
更新日2025-11-06
物件の詳細を見る >
FavoriteLoadingお気に入りに保存する
相談
 123.97m²

池内町 池内ビル 平面図

池内町 池内ビル 外観

【池内ビル】3階37.50坪 熱田区池内町、大通沿い採光良好なオフィスビル

階数
3階/3階建 南号室
貸室面積
37.50坪
賃料
相談
所在地
愛知県名古屋市熱田区池内町2番11号
交通
市営バス 徒歩3分
築年月
1977/8
おすすめポイント
池内ビルは熱田区池内町にあるオフィスビルです。 すぐ向かいにコンビニがあり便利です。 大通沿いにあるので、車での移動もしやすく、来客の際にもわかりやすいです…
更新日2025-11-05
物件の詳細を見る >
FavoriteLoadingお気に入りに保存する
  • 1
  • …
  • 54
  • 55
  • 56
  • 57
  • 58
  • …
  • 108

条件検索

条件検索

条件検索

※エリア選択をお選びいただきますと設備条件が表示されます。

路線・駅または県・市区を選んでいただき、ご希望の条件を選択して検索ボタンを押して下さい
路線・駅選択

県・市区選択

賃料
~
価格~
専有面積
~
駅徒歩
築年数

地図から物件を探す
中区の貸事務所物件特集
オーナー様へ
取引実績

路線マップ

物件キーワード

お値打ち カーテンウォール ガラス張り クリニック可 コンビニ リニューアル 三蔵通 中区 丸の内 久屋大通駅 伏見通 保証金お値打ち 喫煙所 大型 大津通 大通沿い 山王通 店舗可 採光良好 新栄 新築 昭和区 本町通 東区 栄 桜通 築浅 美観 耐震補強 角ビル 角地 貸会議室 郵便局 重厚感 錦 錦通 閑静 駅近 駐車場 駐輪場 駐輪所 1フロア1テナント 1階 EV2基 LED

物件掲載件数 1079 件

お気軽にお問い合わせください

営業時間:9:00~18:00 定休日:日・祝日

お問い合わせはこちら

おすすめ物件

  • 【ENSHOW3】4階30.0...

    187,000円

    愛知県名古屋市昭和区 紅梅町3丁目2番地1

    名古屋市営桜通線御器所駅 徒歩1分

  • 【池下タワーズ】5階19.21...

    192,500円

    愛知県名古屋市千種区 仲田2丁目17番7号

    名古屋市営東山線池下駅 徒歩3分

  • 【今池エフワンビル】3階22....

    266,200円

    愛知県名古屋市千種区 今池4丁目8番1号

    名古屋市営東山線今池駅 徒歩1分

  • 【今池エフワンビル】1階20....

    292,864円

    愛知県名古屋市千種区 今池4丁目8番1号

    名古屋市営東山線今池駅 徒歩1分

更新情報をフォロー

  • 貸事務所.名古屋をフォロー
  • 貸事務所.名古屋をフォロー

Tweets by OfficeNagoya

  • 052-324-3334

    電話受付時間/9:00~18:00[日・祝は除く]
    物件のご相談はお気軽にお問い合わせください。

  • メールでのお問い合わせ

    貸事務所についてお気軽にご相談ください。
    1営業日以内に担当者よりご連絡いたします。

  • 052-324-3334

    電話受付時間/9:00~18:00[日・祝は除く]
    物件のご相談はお気軽にお問い合わせください。

  • メールでのお問い合わせ

    貸事務所についてお気軽にご相談ください。
    1営業日以内に担当者よりご連絡いたします。

  • お問い合わせはこちら
  • 条件検索はこちら
ページ上部へ戻る

エリア別検索

  • 名駅
  • 栄
  • 久屋大通
  • 丸の内
  • 伏見
  • 金山
  • 大須
  • その他

    地域カテゴリ

    • 半田市
    • 岐阜市
    • 名古屋市
      • 千種区
      • 東区
      • 北区
      • 西区
      • 中村区
      • 中区
      • 昭和区
      • 瑞穂区
      • 熱田区
      • 港区
      • 南区
      • 守山区
      • 名東区
      • 天白区
    • 豊橋市
    • 岡崎市
    • 豊田市

    路線カテゴリ

    • 山王駅
    • 小幡駅
    • 池内町東駅
    • JR東海道新幹線
      • 豊橋駅
    • 豊橋鉄道市内線
      • 新川駅
    • 愛知環状鉄道
      • 新豊田駅
    • 名鉄三河線
      • 豊田市駅
    • 東山線
      • 本陣駅
      • 中村日赤駅
      • 名古屋駅
      • 亀島駅
      • 栄駅
      • 伏見駅
      • 新栄駅
      • 千種駅
      • 今池駅
      • 池下駅
      • 一社駅
      • 上社駅
      • 本郷駅
      • 岩塚駅
      • 藤が丘駅
    • 桜通線
      • 中村区役所駅
      • 名古屋駅
      • 国際センター駅
      • 丸の内駅
      • 久屋大通駅
      • 高岳駅
      • 車道駅
      • 今池駅
      • 吹上駅
      • 御器所駅
      • 桜本町
      • 新瑞橋駅
    • 名城線
      • 総合リハビリセンター駅
      • ナゴヤドーム前矢田駅
      • 大曽根駅
      • 志賀本通駅
      • 黒川駅
      • 名城公園駅
      • 市役所駅
      • 久屋大通駅
      • 栄駅
      • 矢場町駅
      • 上前津駅
      • 東別院駅
      • 金山駅
      • 西高蔵駅
      • 熱田神宮伝馬町駅
      • 新瑞橋駅
    • 鶴舞線
      • 浄心駅
      • 浅間町駅
      • 丸の内駅
      • 伏見駅
      • 大須観音駅
      • 上前津駅
      • 鶴舞駅
      • 荒畑駅
      • 御器所駅
    • 名港線
      • 日比野駅
      • 名古屋港
    • JR中央本線
      • 大曽根駅
      • 千種駅
      • 鶴舞駅
      • 金山駅
      • 名古屋駅
    • JR東海道本線
      • 岐阜駅
      • 豊橋駅
      • 名古屋駅
    • 名鉄瀬戸線
      • 矢田駅
      • 東大手駅
      • 森下駅
      • 尼ケ坂駅
    • 名鉄名古屋本線
      • 神宮前駅
      • 東岡崎駅
      • 豊橋駅
      • 栄生駅
      • 桜駅
      • 山王駅
      • 東枇杷島駅
    • 名古屋臨海高速あおなみ線
      • ささしまライブ駅

    不動産関連サービス

    グループサービス

    • 不動産仲介はクルーズコーポレーション
    • テキサス不動産投資は
      クルーズハウジングコーポレーション
    • 不動産管理はクルーズ
    • 貸事務所.名古屋とは
    • 物件検索
    • 取引実績
    • ブログ
    • よくあるご質問
    • 不動産用語集
    • 貸事務所物件一覧
    • 会社概要
    • ビル情報
    • オフィスビルライブラリー
    • お問い合わせ
    • サイトマップ
    • プライバシーポリシー

    貸事務所.名古屋は名古屋市・栄の
    貸事務所探しのエキスパート集団です

    店舗名古屋

    貸事務所.名古屋では名古屋市の中区栄を中心とした貸事務所を紹介し、地元に根差した細やかなサービスでお客様のご要望にお応えいたします。

    名古屋栄地区の貸事務所賃貸のエキスパートとして、三越、松坂屋、ラシック、パルコ、ブランドショップが軒を連ねる南大津通を中心に、緑豊かな景色の久屋大通、ナディアパークやソニーストアのある伊勢町通り、人気のショップや飲食店が多い呉服町通り等、それぞれの特長ある栄の魅力をつくるためのテナントリーシングに注力しています。

    また貸事務所.名古屋のメンバーは自らの足で名古屋の街を歩き、そこで得られた旬の情報をブログや新着物件情報に日々更新を行っております。ぜひ貸事務所.名古屋メンバーの真心のこもった更新情報をご覧になっていただき、名古屋の街をより好きになってもらえるようになれば幸いでございます。

    不動産関連サービス

    グループサービス

    • 不動産仲介はクルーズコーポレーション
    • テキサス不動産投資はクルーズハウジングコーポレーション
    • 不動産管理はクルーズ

    • facebook
    • twitter
    • YouTube

    Copyright © kashijimusho.nagoya All Rights Reserved.

    Fudousan Plugin Ver.1.6.3