
- 物件No.
- J 21424
お問い合わせ時にスタッフにお伝えください。
※印刷時の注意事項
レイアウトを縦向きにして印刷してください。
物件概要
その他賃貸条件・建物・備考
| 構 造 | SRC | 駐車場 | 空有 |
|---|---|---|---|
| 規 模 | 地上8階 | 築年数 | 1979/12 |
| 現 状 | 空室 | 引渡し日 | 期日指定 2026/5 |
| 設備・条件その他 | 2階以上 角地 角部屋 エレベータ OAフロア ミニキッチン 給湯 ウォシュレット トイレ共同 エアコン 個別空調 光ファイバー 24時間セキュリティ | ||
| 備 考 | 定期建物賃貸借契約最長10年 耐震補強工事実施済み |
||
- 【1】
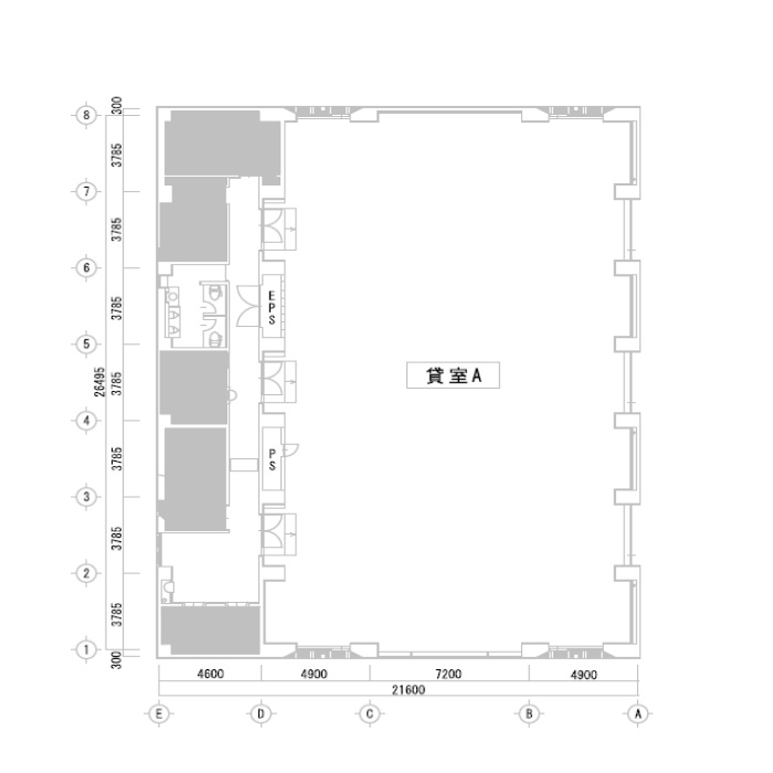
- 案内図・間取図・方位がこの案内書と現況が異なる場合は現況を優先いたします。
- 【2】
- 駐車場の空き状況についてはお問い合わせください。
- 【3】
- 万一成約済の際はご了承ください。
- 【4】
- 契約成立の場合、賃料の1ヶ月分(+消費税)相当額の仲介手数料を申し受けます。


【TODA BUILDING名古屋】4階133.20坪 東区泉1丁目、桜通り沿い角地のタイル張り1フロア1テナントビル
TODA BUILDING名古屋は東区泉1丁目にあり、桜通に面するビルです。
地下鉄桜通線・名城線「久屋大通」駅徒歩3分の好立地です。
1フロア1テナント仕様ですので他テナントに気兼ねなくご利用いただけます。
エントランスがリニューアル済みでキレイです。

他のお部屋

-
【TODA BUILDING名古屋】6階57.98坪 東区泉1丁目、桜通り沿い角地のタイル張りビル
部屋階数: 6階 ( 東 号室 ) / 貸室面積: 57.98坪 / 賃料: 相談

-
【TODA BUILDING名古屋】3階133.20坪 東区泉1丁目、桜通り沿い角地のタイル張り1フロア1テナントビル
部屋階数: 3階 ( 1フロア 号室 ) / 貸室面積: 133.20坪 / 賃料: 相談

-
【TODA BUILDING名古屋】2階132.48坪 東区泉1丁目、桜通り沿い角地のタイル張り1フロア1テナントビル
部屋階数: 2階 ( 1フロア 号室 ) / 貸室面積: 132.48坪 / 賃料: 相談
条件に合った物件を探してみる
![]()
人気のエリアから検索
面積で検索














