
- 物件No.
- J 21420
お問い合わせ時にスタッフにお伝えください。
- 物件No.
- J 21420
お問い合わせ時にスタッフにお伝えください。
※印刷時の注意事項
レイアウトを縦向きにして印刷してください。
物件概要
その他賃貸条件・建物・備考
| 構 造 | 鉄骨造 | 駐車場 | 0円 空有 大型車不可 |
|---|---|---|---|
| 規 模 | 地上9階 | 築年数 | 1991/8 |
| 現 状 | 空室 | 引渡し日 | 相談 |
| 設備・条件その他 | 1階 エレベータ ミニキッチン 電気コンロ ウォシュレット トイレ専用 エアコン 個別空調 光ファイバー 駐車場有 新耐震基準 | ||
| 備 考 | 保証会社加入要 | ||
- 【1】
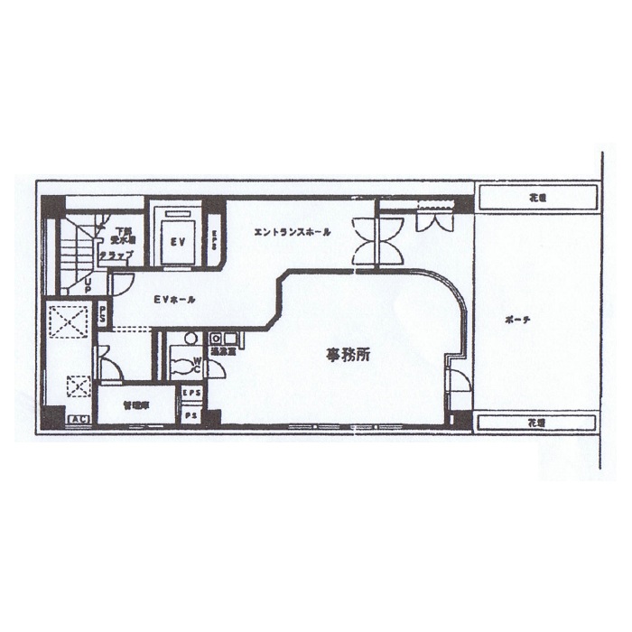
- 案内図・間取図・方位がこの案内書と現況が異なる場合は現況を優先いたします。
- 【2】
- 駐車場の空き状況についてはお問い合わせください。
- 【3】
- 万一成約済の際はご了承ください。
- 【4】
- 契約成立の場合、賃料の1ヶ月分(+消費税)相当額の仲介手数料を申し受けます。


【JBビル】1階11.75坪 東区代官町、閑静な立地の採光良好1フロア1テナントビル
JBビルは東区代官町にあるオフィスビルです。
大通から少し中に入っており、閑静な立地です。
目の前のビルにコンビニが入居しており便利です。
1フロア1テナント仕様ですので他テナントに気兼ねなくご利用いただけます。

他のお部屋

-
【JBビル】6階19.68坪 東区代官町、閑静な立地の採光良好1フロア1テナントビル
部屋階数: 6階 ( 1フロア 号室 ) / 貸室面積: 19.68坪 / 賃料: 176,000円
条件に合った物件を探してみる
![]()
人気のエリアから検索
面積で検索



















